1/2


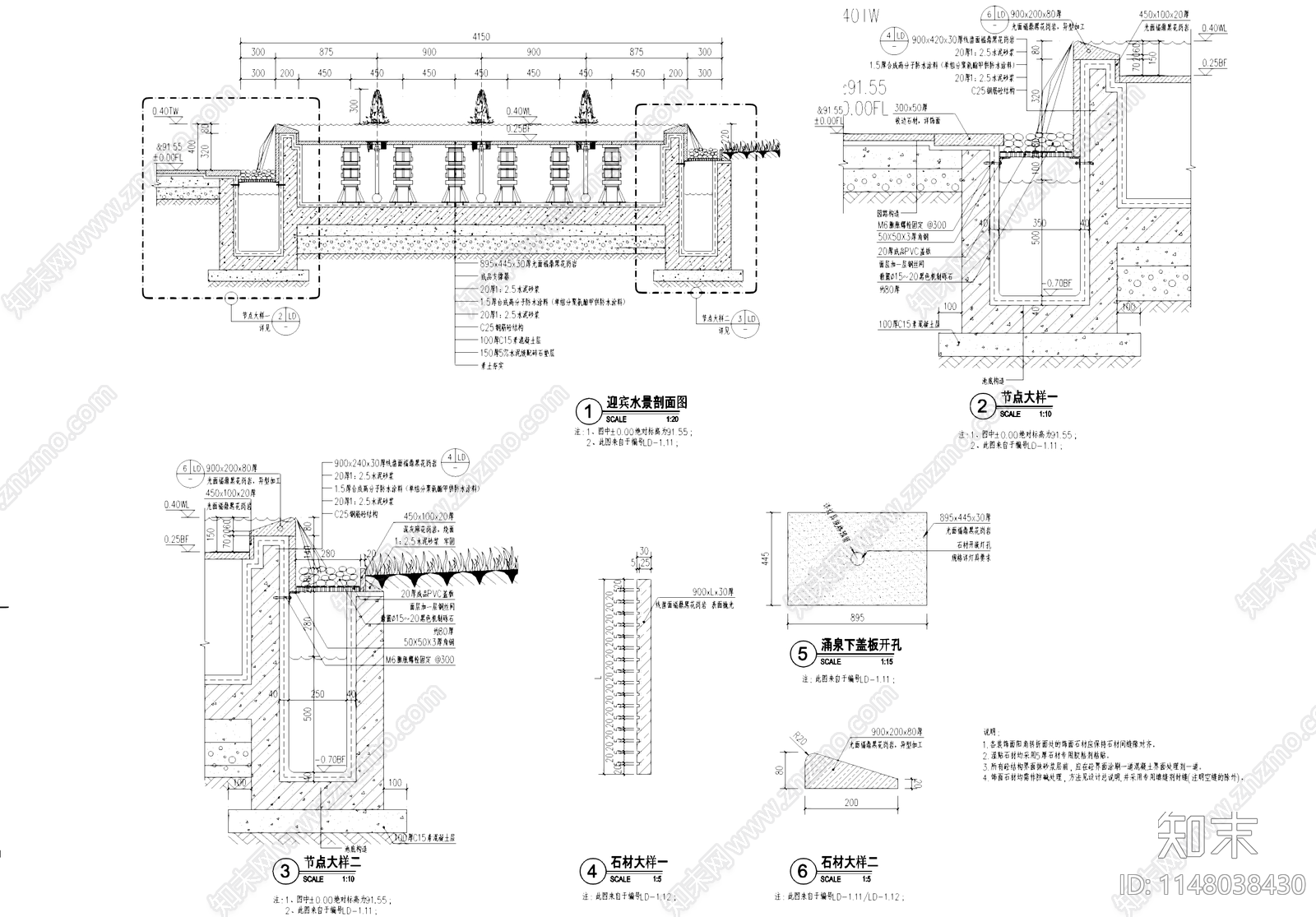
迎宾喷泉水池景观水景节点CAD下载
ID: 1148038430
复制
上传作者
74426266987
74426266987上传时间2023-11-14
文件大小14.8M
设计风格:现代简约
CAD版本:CAD2010
包含文件:CAD
授权普通
立即下载
收藏
分享
举报
相关推荐
综合
节点详图
水景
吊顶节点
墙面节点
地面节点
门节点
其他节点详图
建筑工程节点
景观小品
楼梯节点


74426266987上传时间2023-11-14
文件大小14.8M
设计风格:现代简约
CAD版本:CAD2010
包含文件:CAD
授权普通