CAD频道
CAD图库
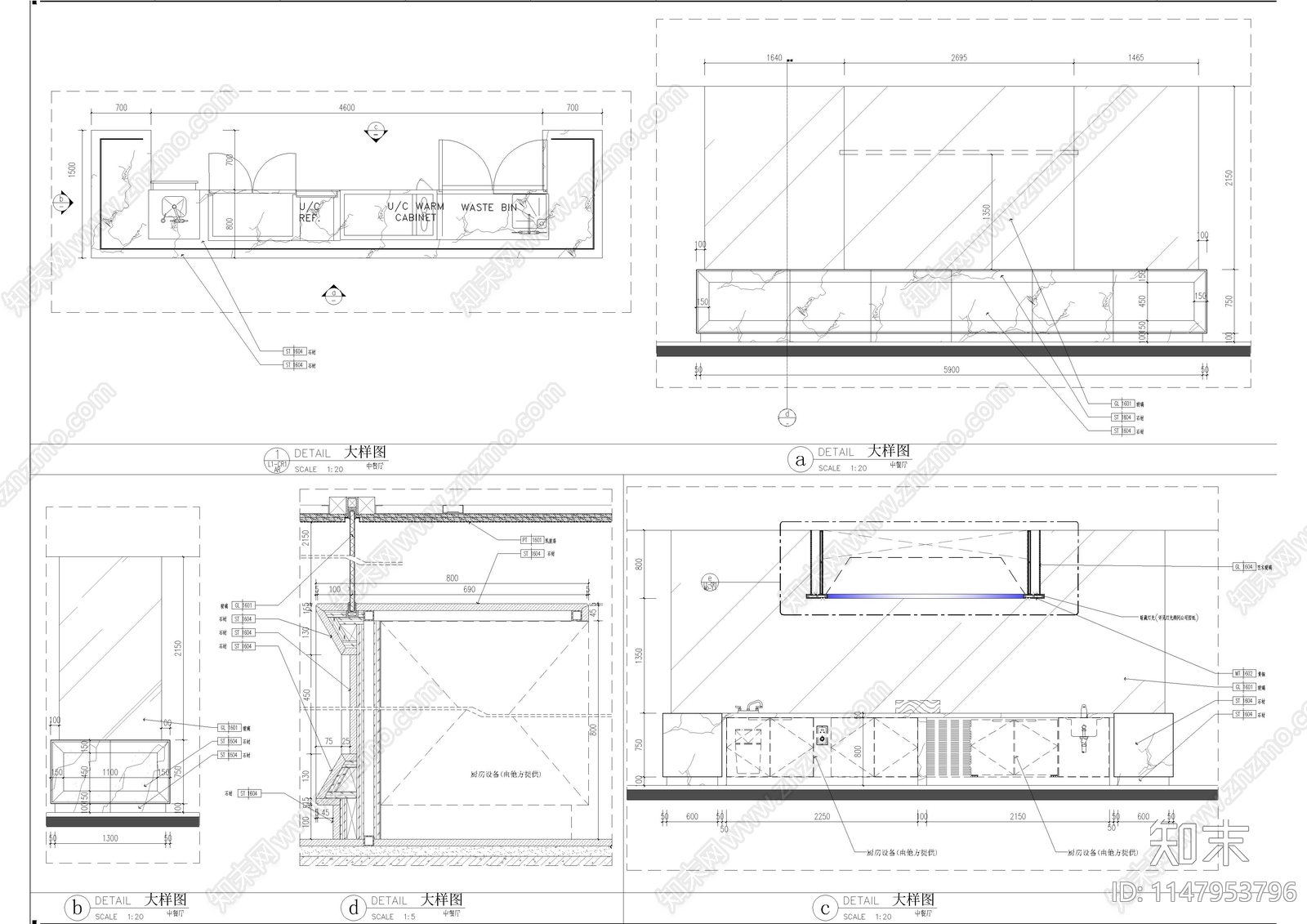
厨房餐台节点大样图 岛台餐台
1/
4
Previous
Next
厨房餐台节点大样图CAD下载
ID: 1147953796
复制
上传作者
xin图
上传时间
2023-11-13
文件大小
2.74M
设计风格:
现代简约
CAD版本:
CAD2004
包含文件:
CAD
授权
普通
立即下载
收藏
分享
举报
相关推荐
综合
家具图库
桌子
沙发
桌椅
床
吧台
柜子
榻榻米
椅子
遮阳伞