1/9


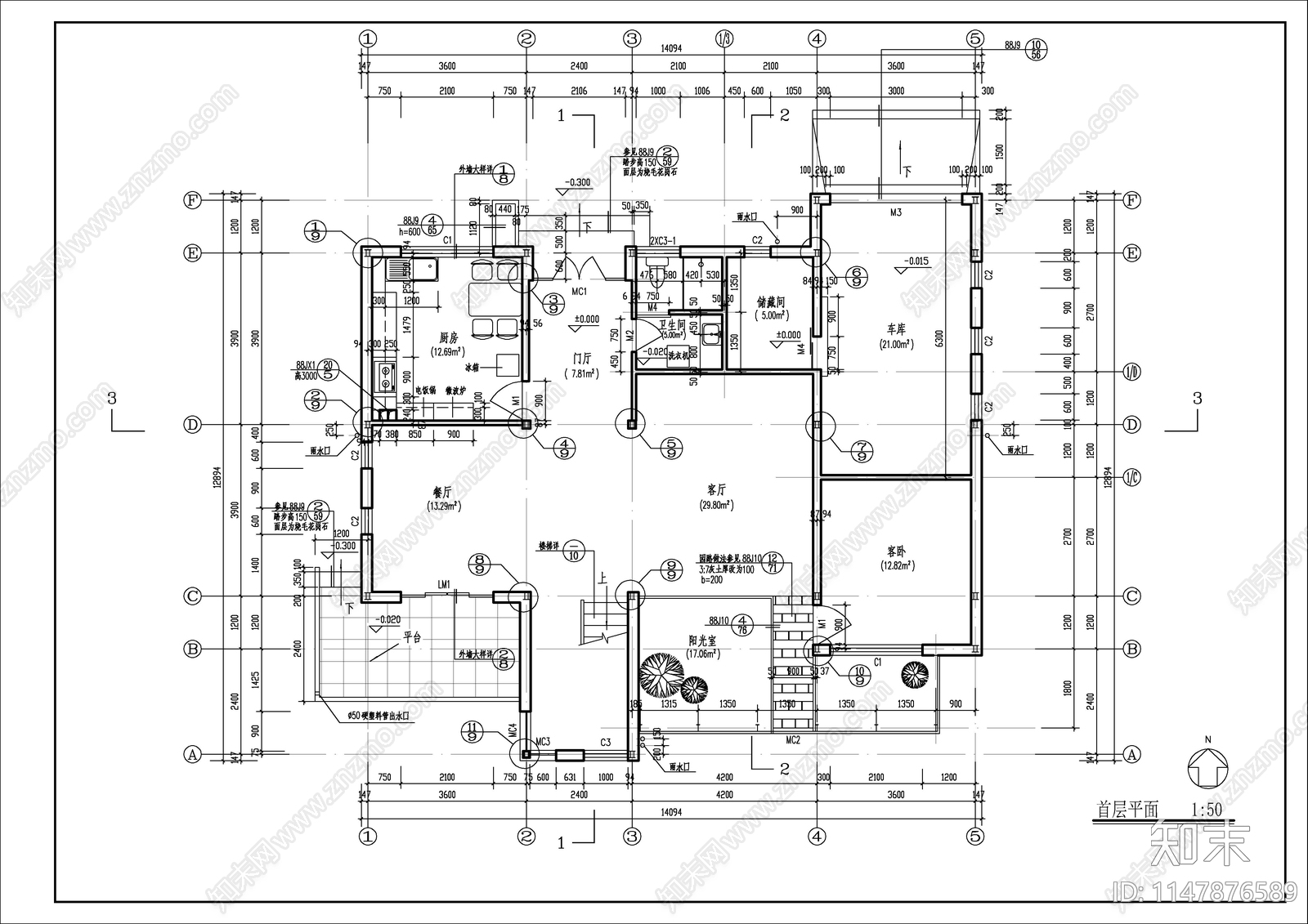
钢框架结构二层别墅建施图CAD下载
ID: 1147876589
复制
上传作者
承诺不熬椰
承诺不熬椰上传时间2023-11-12
文件大小0.53M
设计风格:现代简约
CAD版本:CAD2004
包含文件:CAD
授权独家
立即下载
收藏
分享
举报
相关推荐
综合
居住建筑
别墅建筑
住宅楼建筑
四合院
其他居住建筑
高层住宅
多层住宅
低层住宅
公寓建筑
联排住宅


承诺不熬椰上传时间2023-11-12
文件大小0.53M
设计风格:现代简约
CAD版本:CAD2004
包含文件:CAD
授权独家