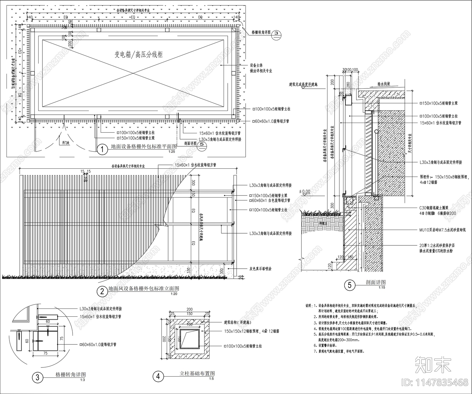
电箱外包装饰景墙节点施工图下载【ID:1147835468】

电箱外包装饰景墙节点CAD下载

ID: 1147835468
复制
上传作者
457145457145

上传时间2023-11-11

文件大小1.37M

设计风格:现代简约

CAD版本:CAD2007

包含文件:CAD

授权普通

立即下载
收藏
分享
举报
相关推荐
综合
景观小品
景墙
亭子
廊架
综合景观小品
雨棚
围墙
挡土墙
入口
景观坐凳