1/4


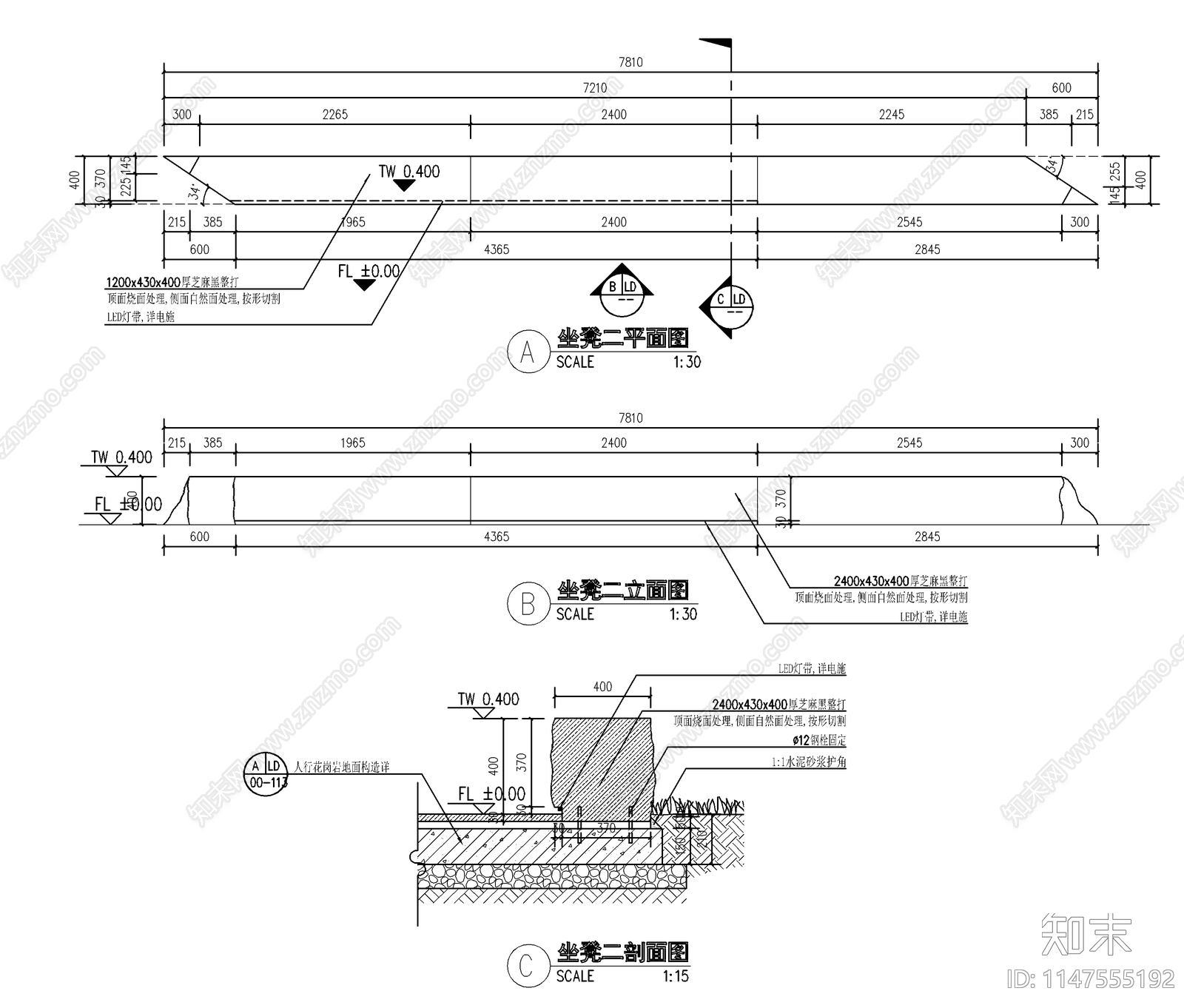
现代景观防腐木整石坐凳大样详图CAD下载
ID: 1147555192
复制
上传作者
labububbbbb
labububbbbb上传时间2023-11-07
文件大小1.48M
设计风格:现代简约
CAD版本:CAD2014
包含文件:CAD
授权普通
立即下载
收藏
分享
举报
相关推荐
综合
景观小品
景观坐凳
亭子
廊架
景墙
综合景观小品
雨棚
围墙
挡土墙
入口


labububbbbb上传时间2023-11-07
文件大小1.48M
设计风格:现代简约
CAD版本:CAD2014
包含文件:CAD
授权普通