1/2


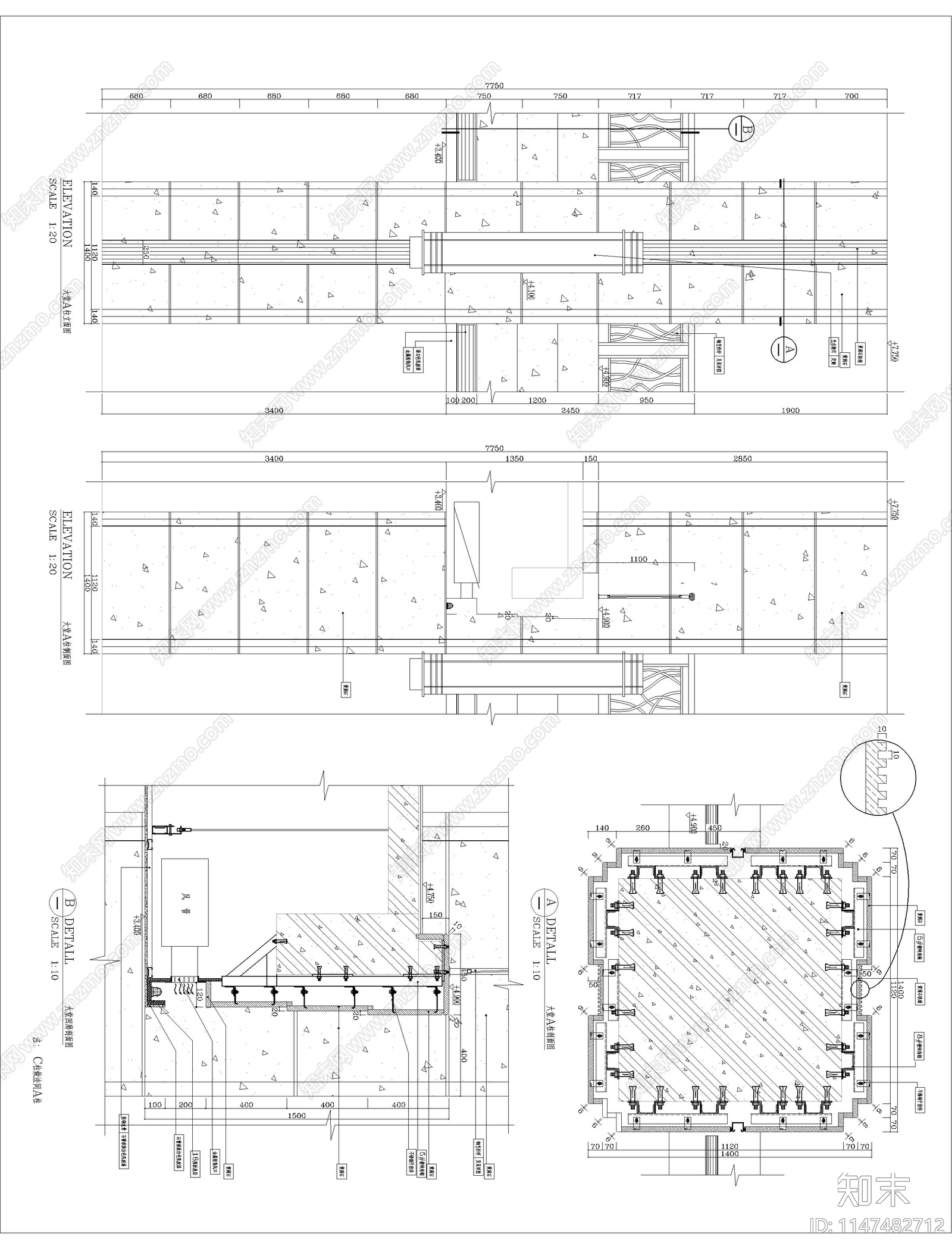
两款酒店大堂石材柱详图CAD下载
ID: 1147482712
复制
上传作者
oYMJ
oYMJ上传时间2023-11-06
文件大小0.19M
设计风格:现代简约
CAD版本:CAD2004
包含文件:CAD
授权独家
立即下载
收藏
分享
举报
相关推荐
综合
建筑工程节点
柱子节点
屋顶
吊装节点
斗拱节点
楼板节点
女儿墙节点
塔吊节点
天窗节点
屋檐节点


oYMJ上传时间2023-11-06
文件大小0.19M
设计风格:现代简约
CAD版本:CAD2004
包含文件:CAD
授权独家