CAD频道
CAD图库
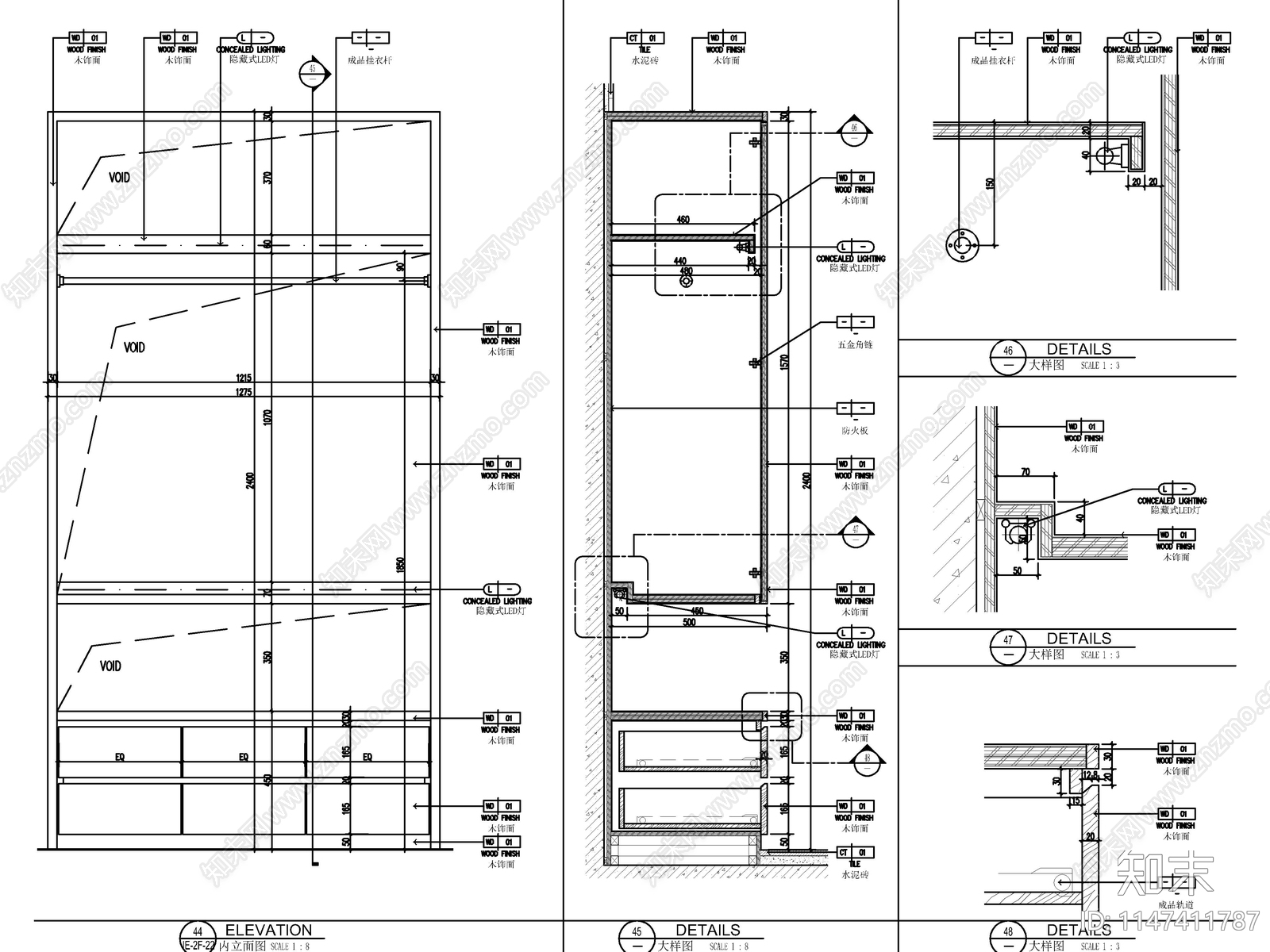
装饰柜剖面大样详图 装饰柜详图 书柜 施工图 柜类 家具节点详图
1/
2
Previous
Next
装饰柜剖面大样详图CAD下载
ID: 1147411787
复制
上传作者
@白鹿原
上传时间
2023-11-06
文件大小
1.13M
设计风格:
现代简约
CAD版本:
CAD2004
包含文件:
CAD
授权
普通
立即下载
收藏
分享
举报
相关推荐
综合
家具节点详图
柜体节点
吧台节点
壁炉节点
卡座节点
前台节点
综合家具节点