
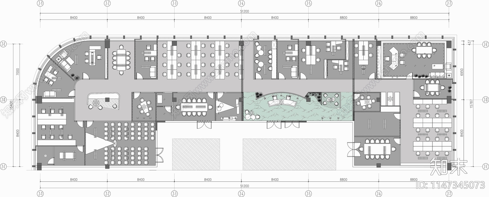
800平方面办公室平面CAD下载
ID: 1147345073
复制
上传作者
861104(粉回)
861104(粉回)上传时间2023-11-04
文件大小3.23M
设计风格:现代简约
CAD版本:CAD2004
包含文件:CAD
授权独家
立即下载
收藏
分享
举报
相关推荐
综合
平面图
工装平面图
景观平面图
规划平面图
其他平面图
小区平面图

861104(粉回)上传时间2023-11-04
文件大小3.23M
设计风格:现代简约
CAD版本:CAD2004
包含文件:CAD
授权独家