CAD频道
CAD图库
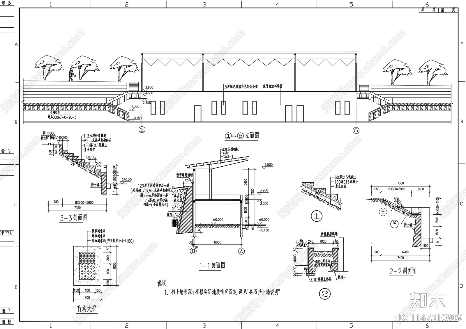
看台钢结构图 施工图 节点 结构节点图 钢结构节点
1/
10
Previous
Next
看台钢结构图CAD下载
ID: 1147310909
复制
上传作者
常威打来福
上传时间
2023-11-04
文件大小
0.57M
设计风格:
现代简约
CAD版本:
天正CAD6.0
包含文件:
CAD
授权
独家
立即下载
收藏
分享
举报
相关推荐
综合
运动场
看台
网球场
篮球场
其他运动场地
操场
足球场
羽毛球场
高尔夫