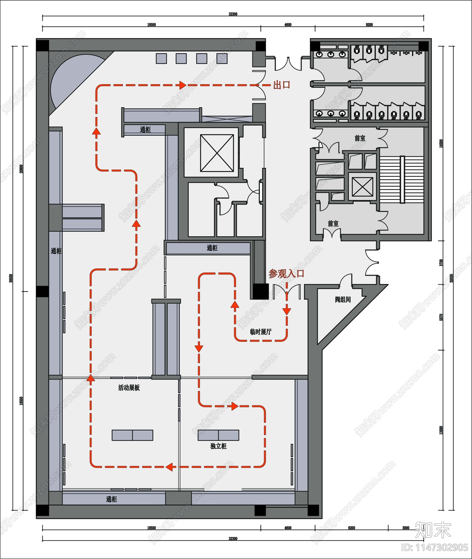
吉林博物馆临展展厅平面施工图下载【ID:1147302905】

吉林博物馆临展展厅平面CAD下载

ID: 1147302905
复制
上传作者
十八年窖藏十八年窖藏

上传时间2023-11-03

文件大小1.24M

设计风格:现代简约

CAD版本:CAD2007

包含文件:CAD

授权独家

立即下载
收藏
分享
举报
相关推荐
综合
平面图
工装平面图
景观平面图
规划平面图
其他平面图
小区平面图