1/2


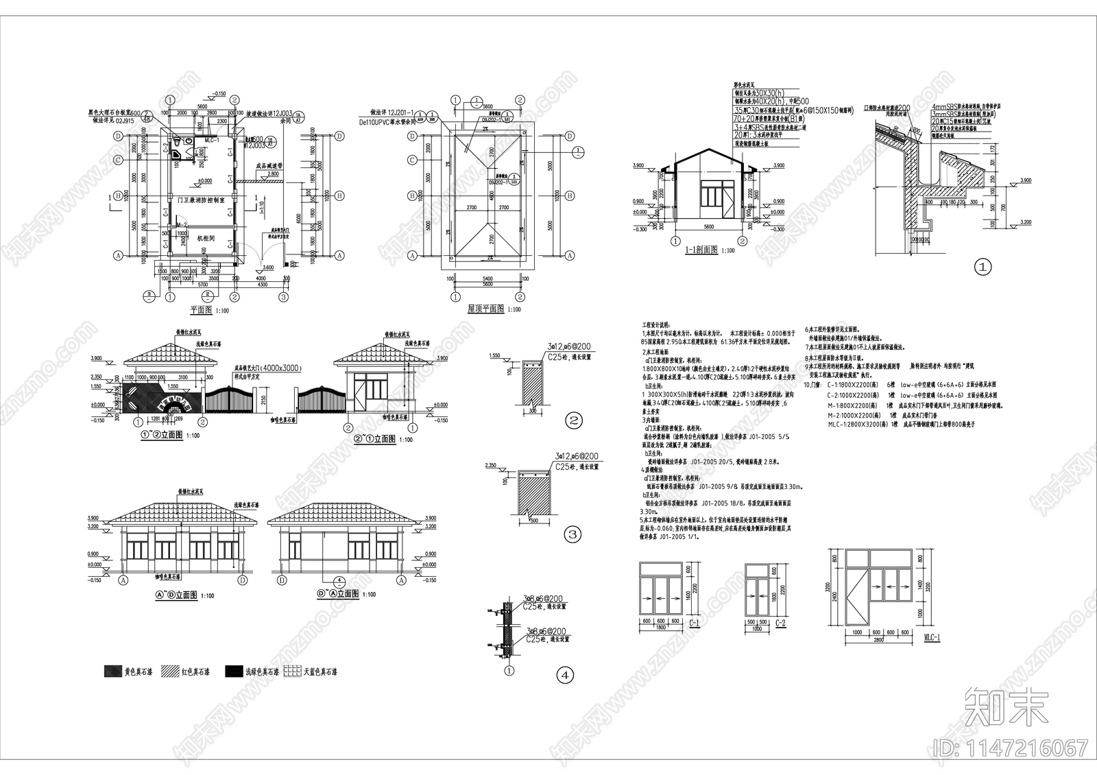
幼儿园门卫及消防控制室建筑CAD下载
ID: 1147216067
复制
上传作者
设计不设计
设计不设计上传时间2023-11-02
文件大小0.33M
设计风格:现代简约
CAD版本:天正CAD4.0
包含文件:CAD
授权独家
立即下载
收藏
分享
举报
相关推荐
综合
公共建筑
门卫室建筑
会议中心建筑
公厕
行政机构建筑
其他公共建筑
医院建筑
停车楼
消防站
集装箱


设计不设计上传时间2023-11-02
文件大小0.33M
设计风格:现代简约
CAD版本:天正CAD4.0
包含文件:CAD
授权独家