1/4


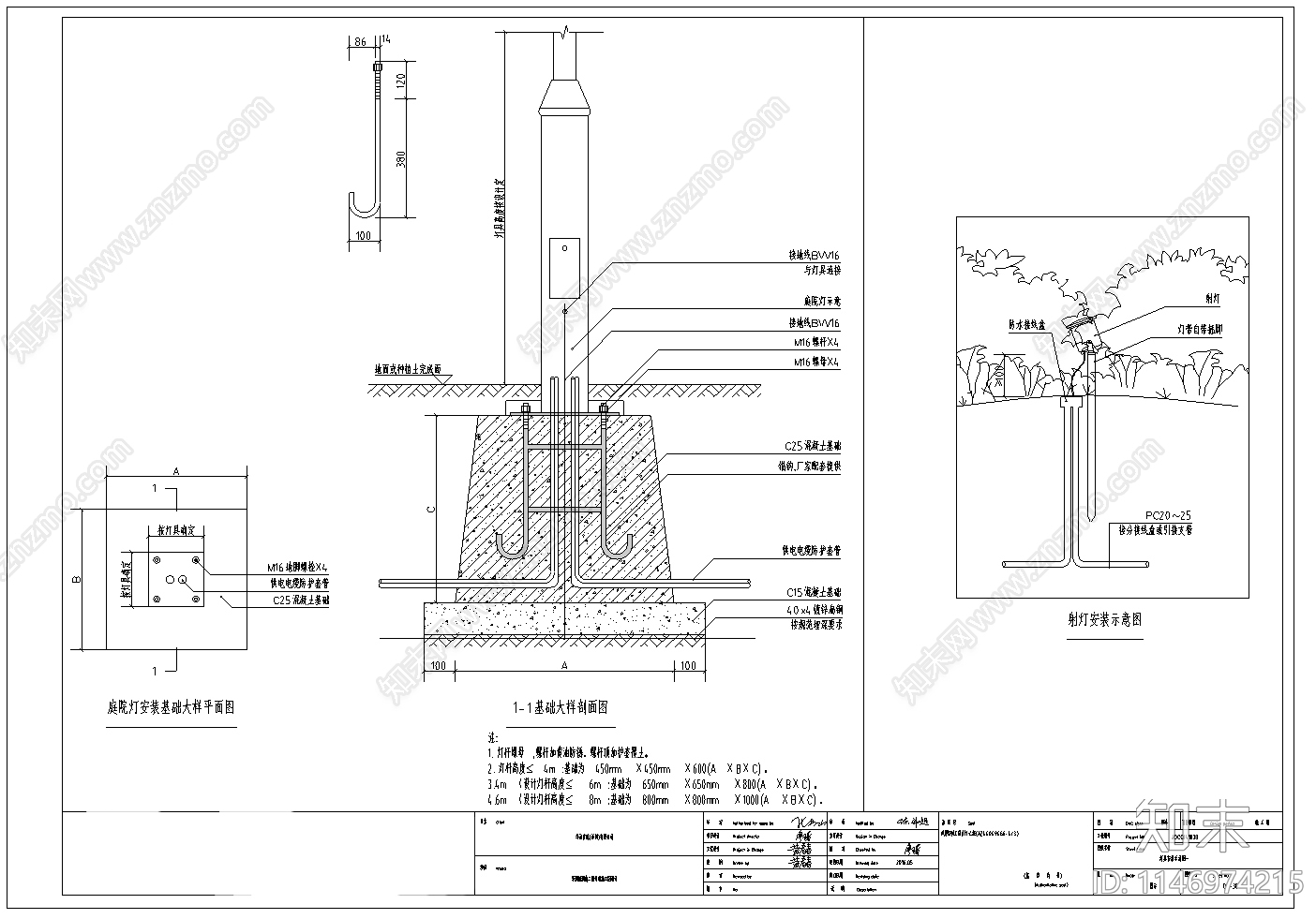
景观庭院灯草坪灯节点CAD下载
ID: 1146974215
复制
上传作者
云曦-°
云曦-°上传时间2023-10-30
文件大小1.01M
设计风格:现代简约
CAD版本:CAD2012
包含文件:CAD
授权独家
立即下载
收藏
分享
举报
相关推荐
综合
节点详图
灯节点
吊顶节点
墙面节点
地面节点
门节点
其他节点详图
建筑工程节点
景观小品
楼梯节点


云曦-°上传时间2023-10-30
文件大小1.01M
设计风格:现代简约
CAD版本:CAD2012
包含文件:CAD
授权独家