CAD频道
CAD图库
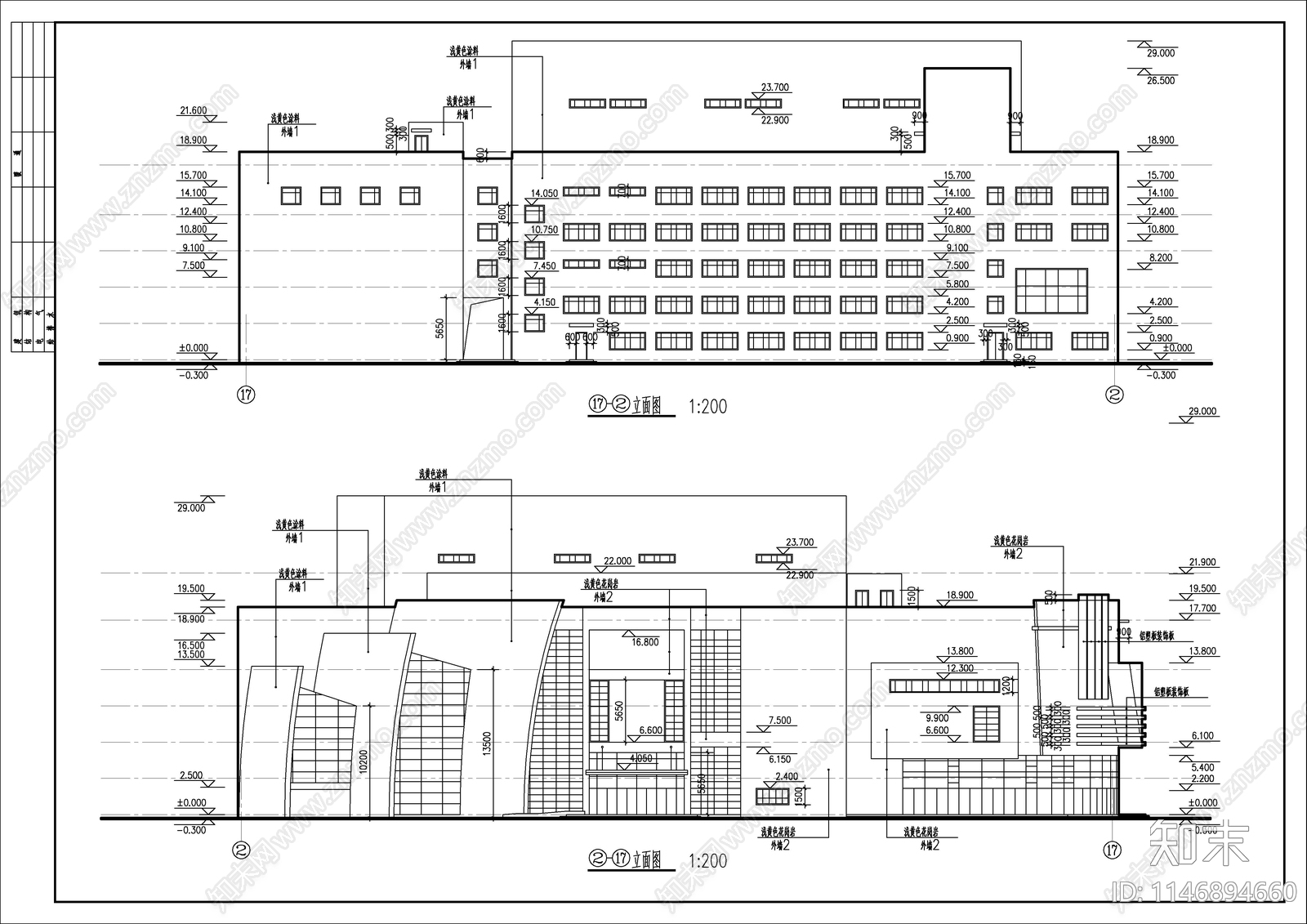
大型影剧院建筑 施工图 公共建筑
1/
9
Previous
Next
大型影剧院建筑CAD下载
ID: 1146894660
复制
上传作者
承诺不熬椰
上传时间
2023-10-29
文件大小
1.49M
设计风格:
现代简约
CAD版本:
CAD2004
包含文件:
CAD
授权
独家
立即下载
收藏
分享
举报
相关推荐
综合
文化空间
剧院
体育馆
博物馆
图书馆
其他文化空间
美术馆
游泳馆
科技馆