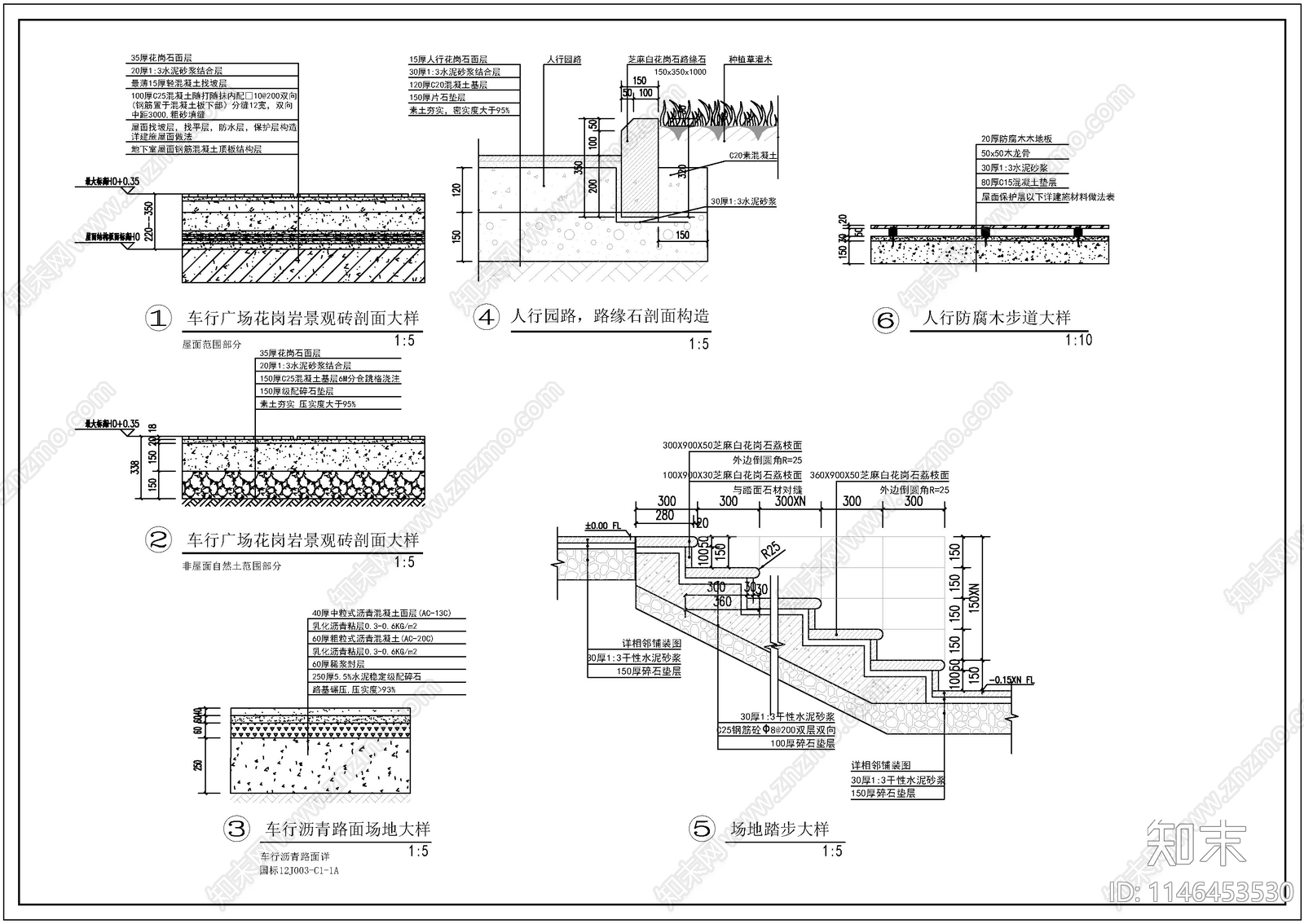
园林景观构造大样施工图下载【ID:1146453530】

园林景观构造大样CAD下载

ID: 1146453530
复制
上传作者
dcbfermakdcbfermak

上传时间2023-10-23

文件大小1.08M

设计风格:--

CAD版本:CAD2007

包含文件:CAD

授权独家

立即下载
收藏
分享
举报
相关推荐
综合
景观小品
综合景观小品
亭子
廊架
景墙
雨棚
围墙
挡土墙
入口
景观坐凳