CAD频道
CAD图库
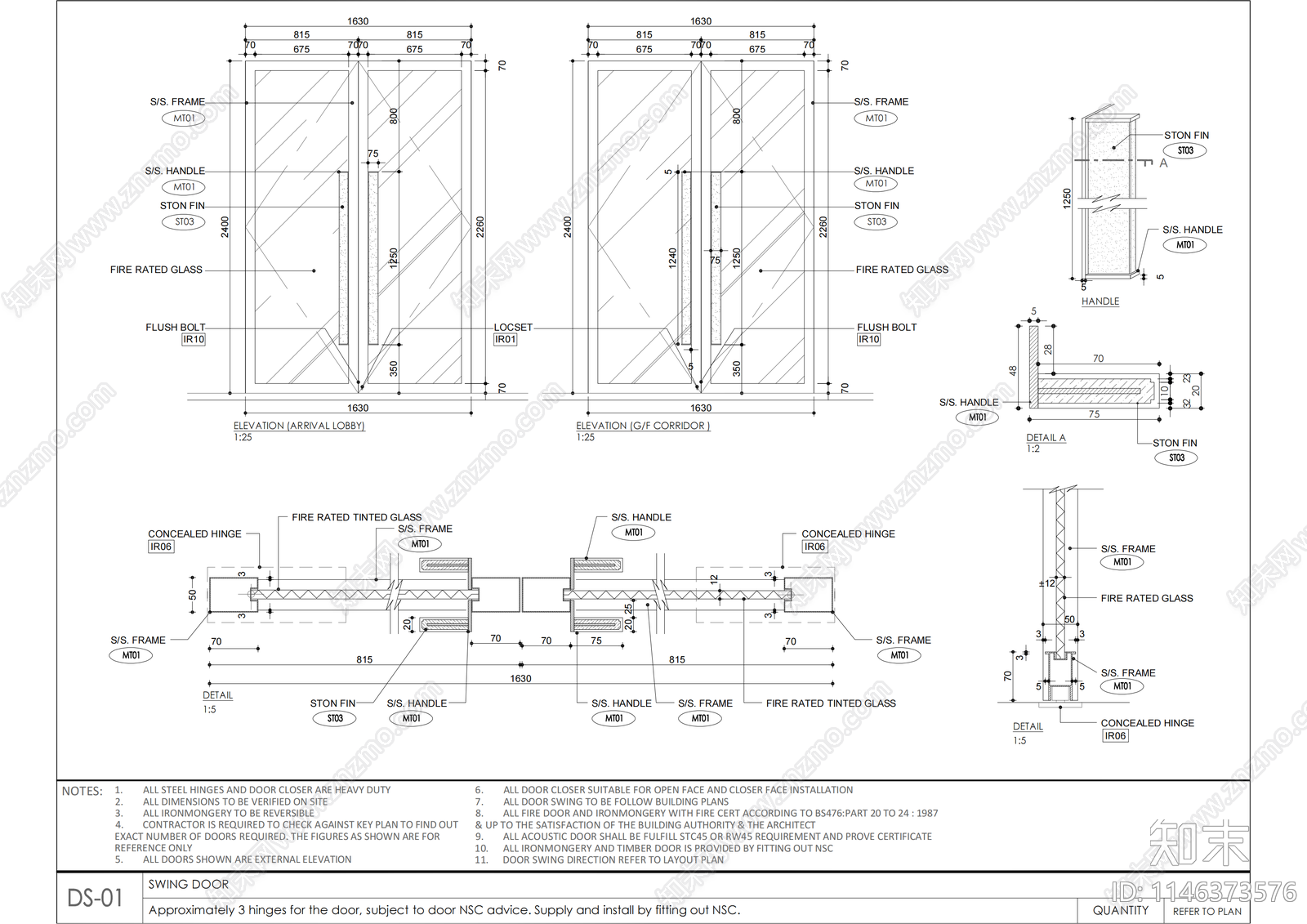
双开玻璃门 单开玻璃 表节点 施工图 通用节点 门节点
双开玻璃门CAD下载
ID: 1146373576
复制
上传作者
CCCL
上传时间
2023-10-22
文件大小
0.51M
设计风格:
--
CAD版本:
CAD2000
包含文件:
CAD
授权
独家
立即下载
收藏
分享
举报
相关推荐
综合
门节点
玻璃门节点
入户门
铁艺大门
月洞门
推拉门节点
隐形门节点
综合门节点