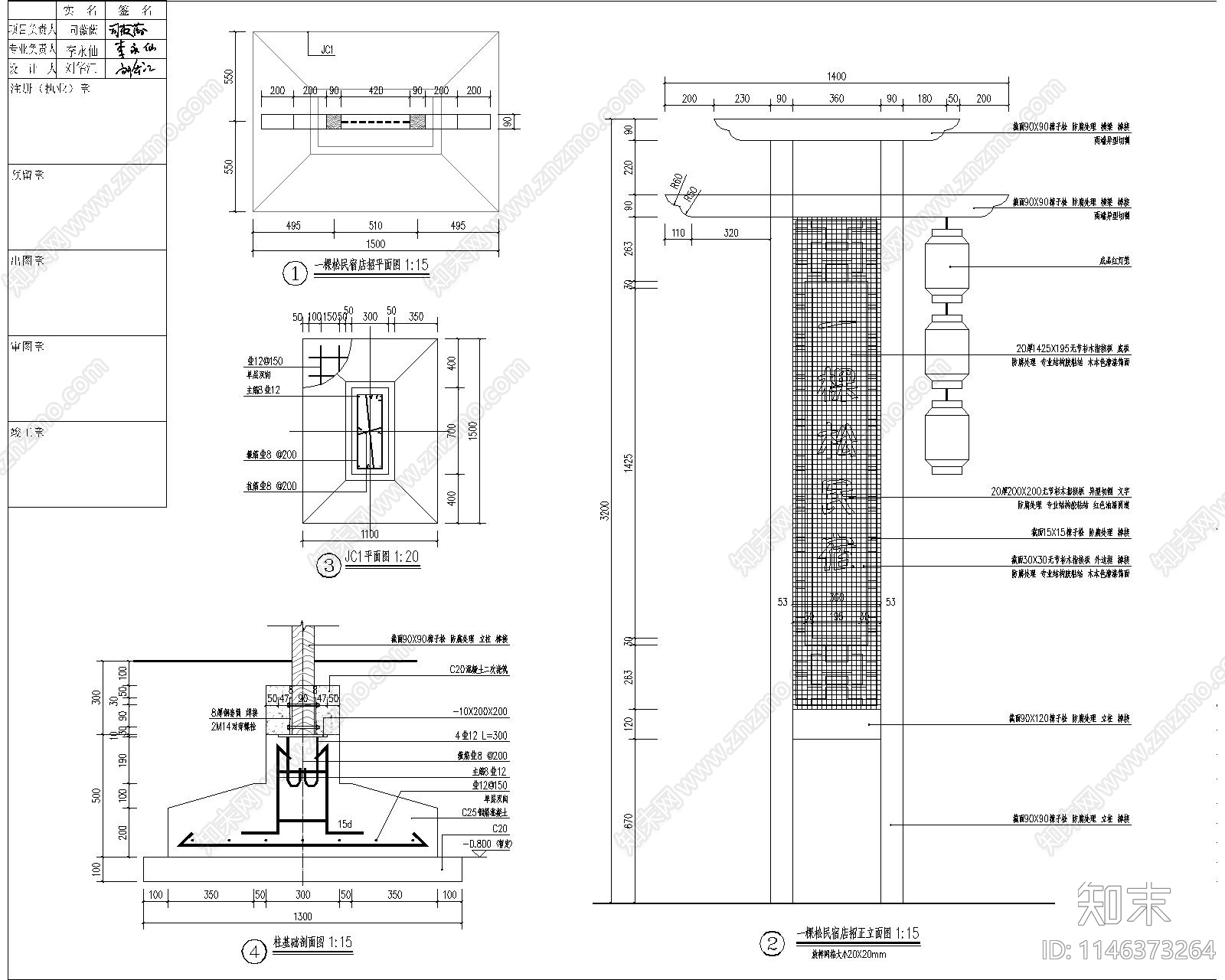
民宿招牌详图施工图下载【ID:1146373264】

民宿招牌详图CAD下载

ID: 1146373264
复制
上传作者
园林景观施工图园林景观施工图

上传时间2023-10-22

文件大小0.45M

设计风格:现代简约

CAD版本:CAD2010

包含文件:CAD

授权独家

立即下载
收藏
分享
举报
相关推荐
综合
景观小品
综合景观小品
亭子
廊架
景墙
雨棚
围墙
挡土墙
入口
景观坐凳