1/2
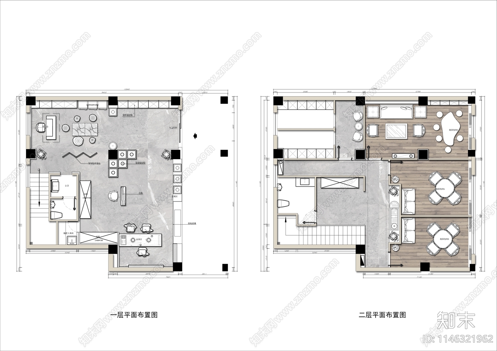
两层茶叶店茶楼室内平面图施工图下载【ID:1146321962】

两层茶叶店茶楼室内平面图CAD下载

ID: 1146321962
复制
上传作者
智取怂猫河智取怂猫河

上传时间2023-10-21

文件大小2.19M

设计风格:现代简约

CAD版本:CAD2004

包含文件:CAD

授权独家

立即下载
收藏
分享
举报
相关推荐
综合
平面图
工装平面图
景观平面图
规划平面图
其他平面图
小区平面图