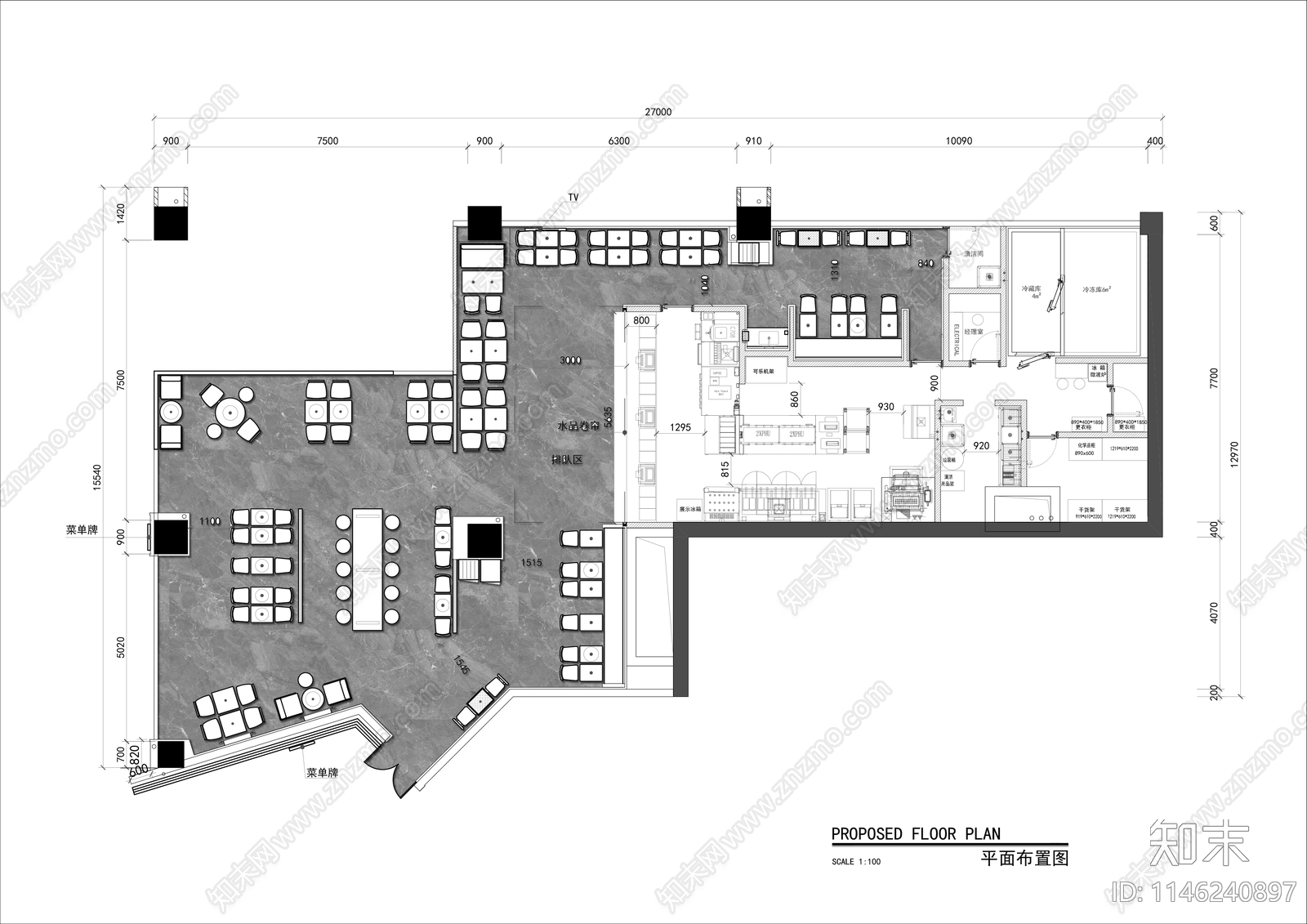
北欧咖啡甜品店平面图施工图下载【ID:1146240897】

北欧咖啡甜品店平面图CAD下载

ID: 1146240897
复制
上传作者
灵感碎片灵感碎片

上传时间2023-10-20

文件大小2.68M

设计风格:现代简约

CAD版本:CAD2004

包含文件:CAD

授权普通

立即下载
收藏
分享
举报
相关推荐
综合
餐饮空间
蛋糕店
中餐厅
西餐厅
快餐店
自助餐厅
茶餐厅
其他餐饮空间
食堂
奶茶店