1/2


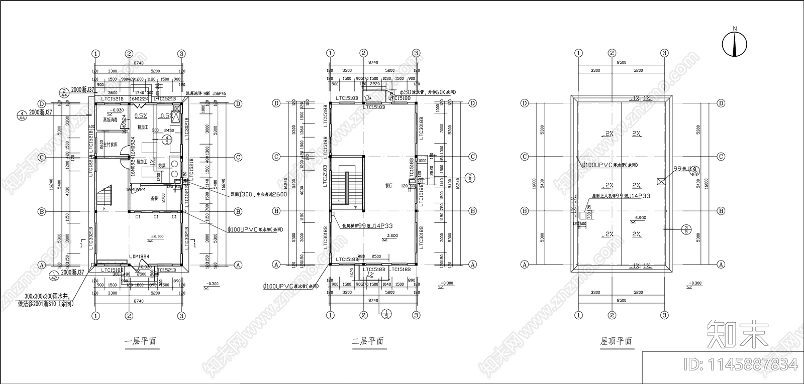
小型食堂建筑CAD下载
ID: 1145887834
复制
上传作者
承诺不熬椰
承诺不熬椰上传时间2023-10-16
文件大小0.24M
设计风格:现代简约
CAD版本:CAD2010
包含文件:CAD
授权独家
立即下载
收藏
分享
举报
相关推荐
综合
建筑
其他建筑
居住建筑
办公工业建筑
商业建筑
酒店民宿建筑
交通建筑
规划设计
古建
教育建筑


承诺不熬椰上传时间2023-10-16
文件大小0.24M
设计风格:现代简约
CAD版本:CAD2010
包含文件:CAD
授权独家