CAD频道
CAD图库
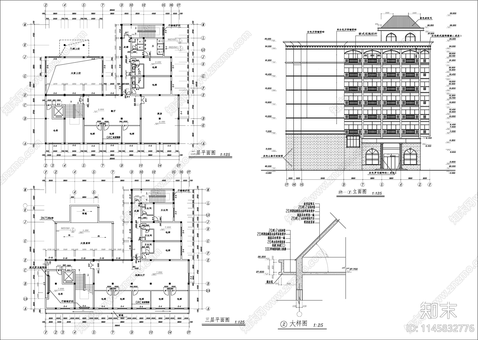
8层V型私人宾馆建筑 施工图
1/
4
Previous
Next
8层V型私人宾馆建筑CAD下载
ID: 1145832776
复制
上传作者
承诺不熬椰
上传时间
2023-10-15
文件大小
0.61M
设计风格:
现代简约
CAD版本:
CAD2010
包含文件:
CAD
授权
独家
立即下载
收藏
分享
举报
相关推荐
综合
酒店民宿建筑
酒店建筑
民宿建筑