1/10


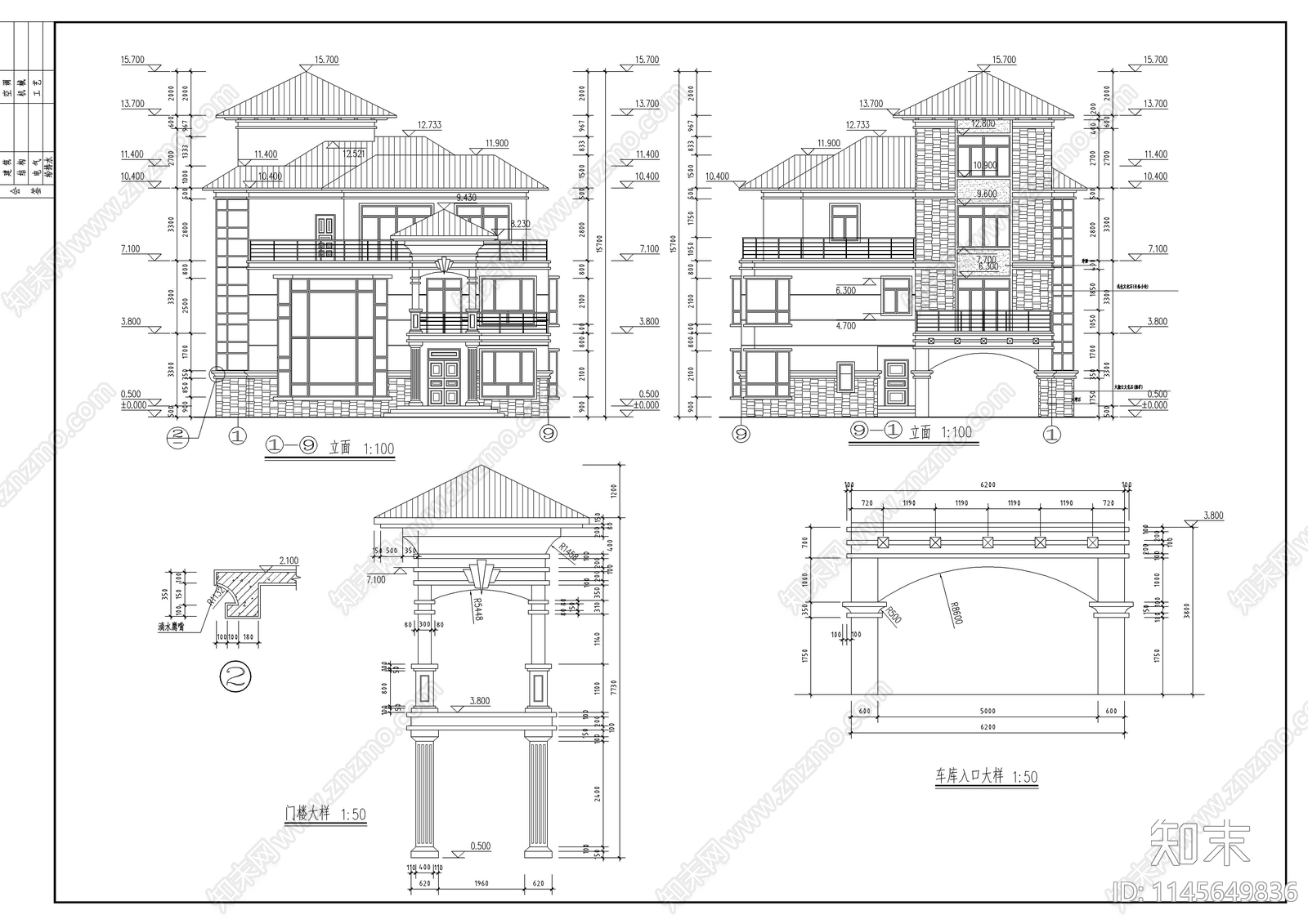
两套仿古别墅建筑详图CAD下载
ID: 1145649836
复制
上传作者
艺创空间
艺创空间上传时间2023-10-12
文件大小1.33M
设计风格:现代简约
CAD版本:CAD2004
包含文件:CAD
授权独家
立即下载
收藏
分享
举报
相关推荐
综合
居住建筑
别墅建筑
住宅楼建筑
四合院
其他居住建筑
高层住宅
多层住宅
低层住宅
公寓建筑
联排住宅


艺创空间上传时间2023-10-12
文件大小1.33M
设计风格:现代简约
CAD版本:CAD2004
包含文件:CAD
授权独家