1/10


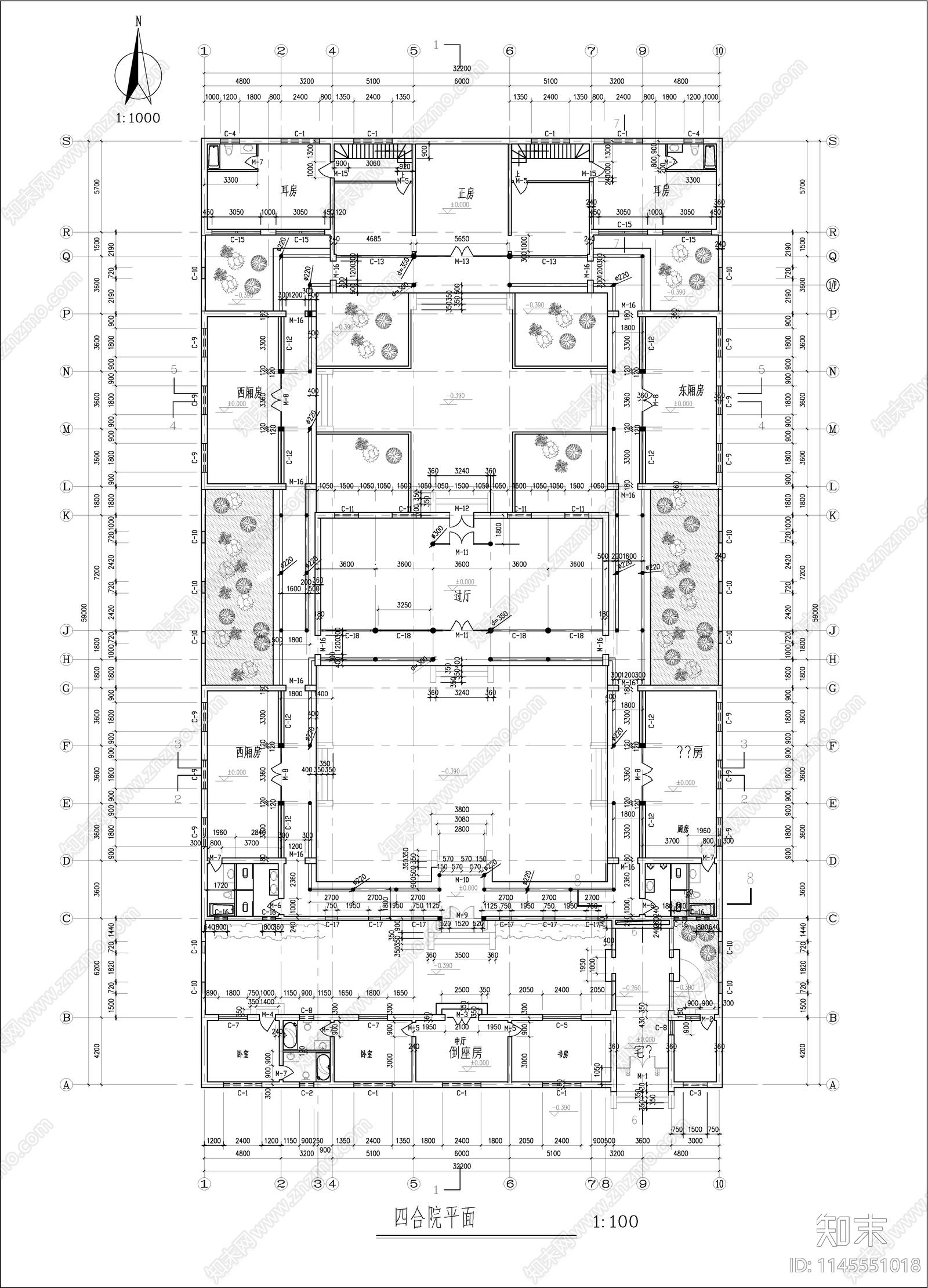
二层砖混结构四合院建筑CAD下载
ID: 1145551018
复制
上传作者
承诺不熬椰
承诺不熬椰上传时间2023-10-11
文件大小4.24M
设计风格:现代简约
CAD版本:CAD2010
包含文件:CAD
授权独家
立即下载
收藏
分享
举报
相关推荐
综合
居住建筑
四合院
住宅楼建筑
别墅建筑
其他居住建筑
高层住宅
多层住宅
低层住宅
公寓建筑
联排住宅


承诺不熬椰上传时间2023-10-11
文件大小4.24M
设计风格:现代简约
CAD版本:CAD2010
包含文件:CAD
授权独家