
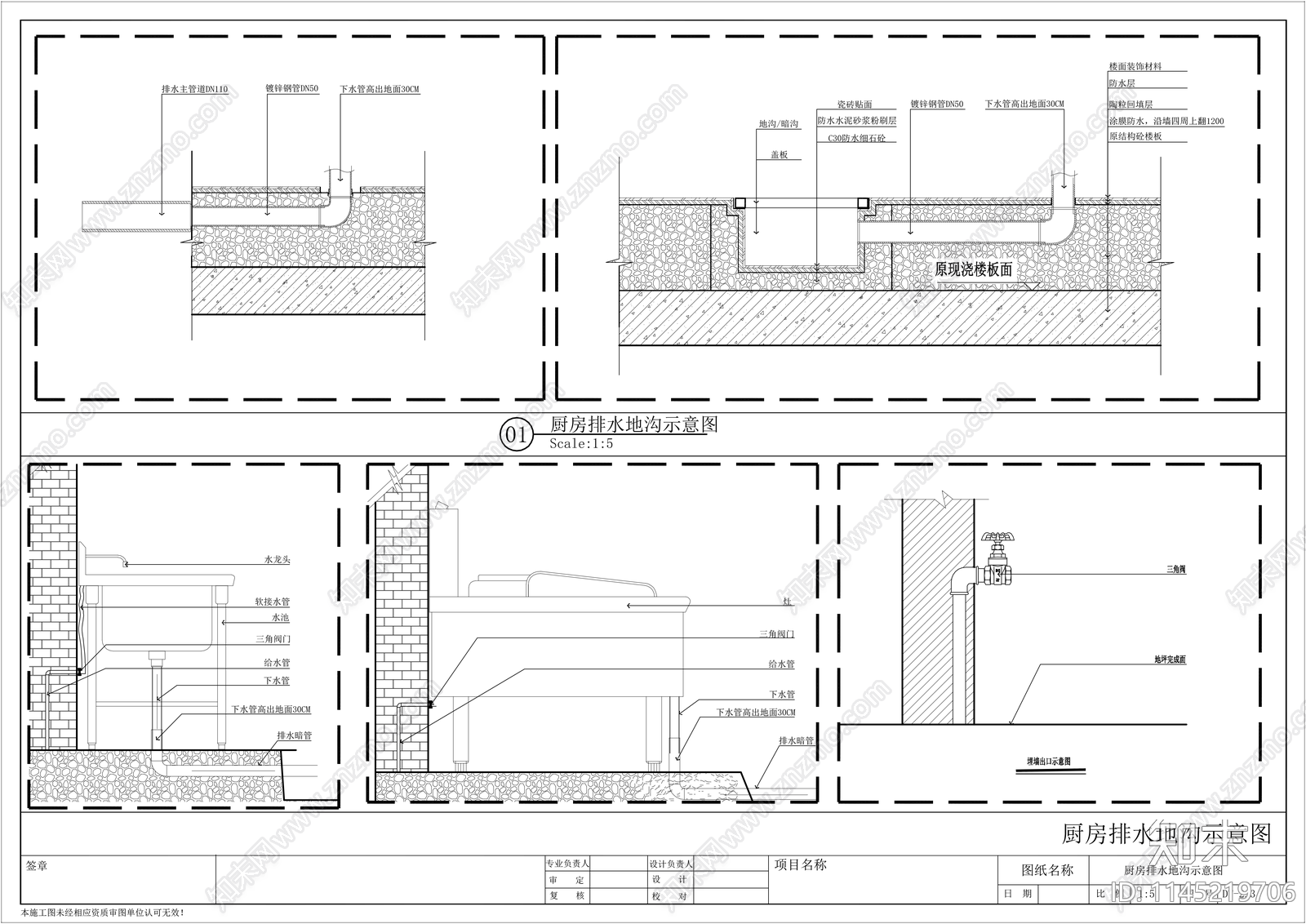
餐饮店厨房排水地沟节点CAD下载
ID: 1145219706
复制
上传作者
施工图节点绘制
施工图节点绘制上传时间2023-10-07
文件大小1.45M
设计风格:现代简约
CAD版本:CAD2000
包含文件:CAD
授权普通
立即下载
收藏
分享
举报
相关推荐
综合
电气工程节点
给排水节点详图
暖通节点
电气节点
水处理节点
其他电气工程节点

施工图节点绘制上传时间2023-10-07
文件大小1.45M
设计风格:现代简约
CAD版本:CAD2000
包含文件:CAD
授权普通