CAD频道
CAD图库
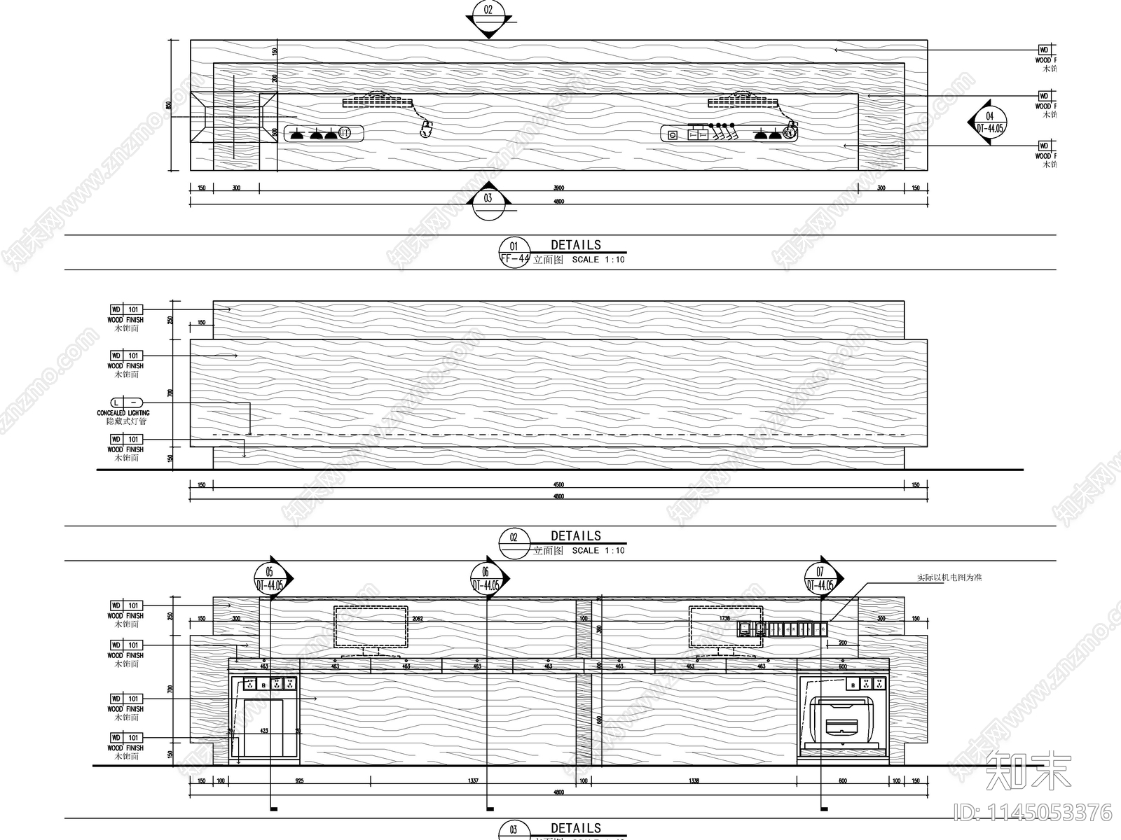
现代简约接待台详图 施工图 家具节点
1/
3
Previous
Next
现代简约接待台详图CAD下载
ID: 1145053376
复制
上传作者
@白鹿原
上传时间
2023-10-02
文件大小
4.14M
设计风格:
现代简约
CAD版本:
CAD2004
包含文件:
CAD
授权
普通
立即下载
收藏
分享
举报
相关推荐
综合
家具节点详图
综合家具节点
吧台节点
壁炉节点
柜体节点
卡座节点
前台节点