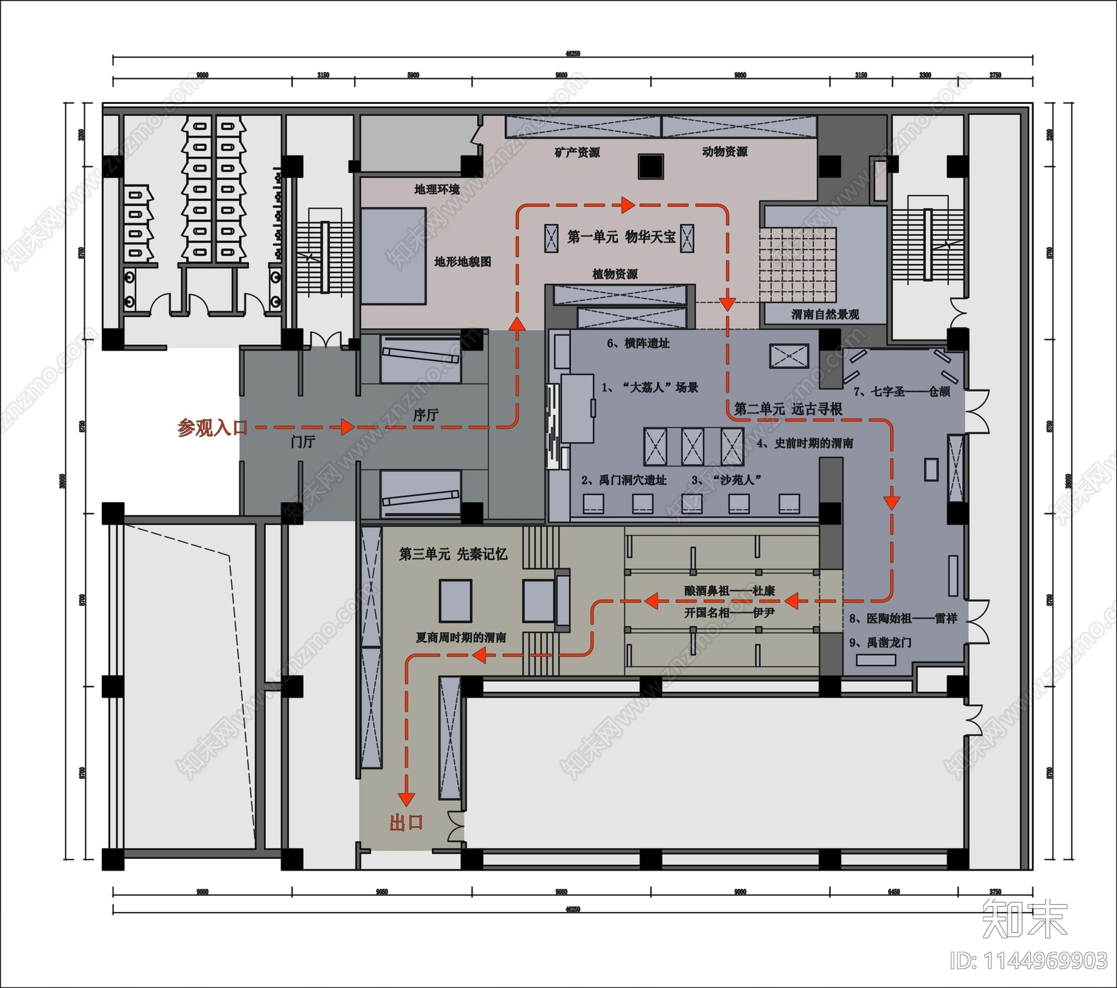
渭南博物馆展厅平面图施工图下载【ID:1144969903】

渭南博物馆展厅平面图CAD下载

ID: 1144969903
复制
上传作者
十八年窖藏十八年窖藏

上传时间2023-09-28

文件大小1.52M

设计风格:现代简约

CAD版本:CAD2007

包含文件:CAD

授权独家

立即下载
收藏
分享
举报
相关推荐
综合
平面图
工装平面图
景观平面图
规划平面图
其他平面图
小区平面图