CAD频道
CAD图库
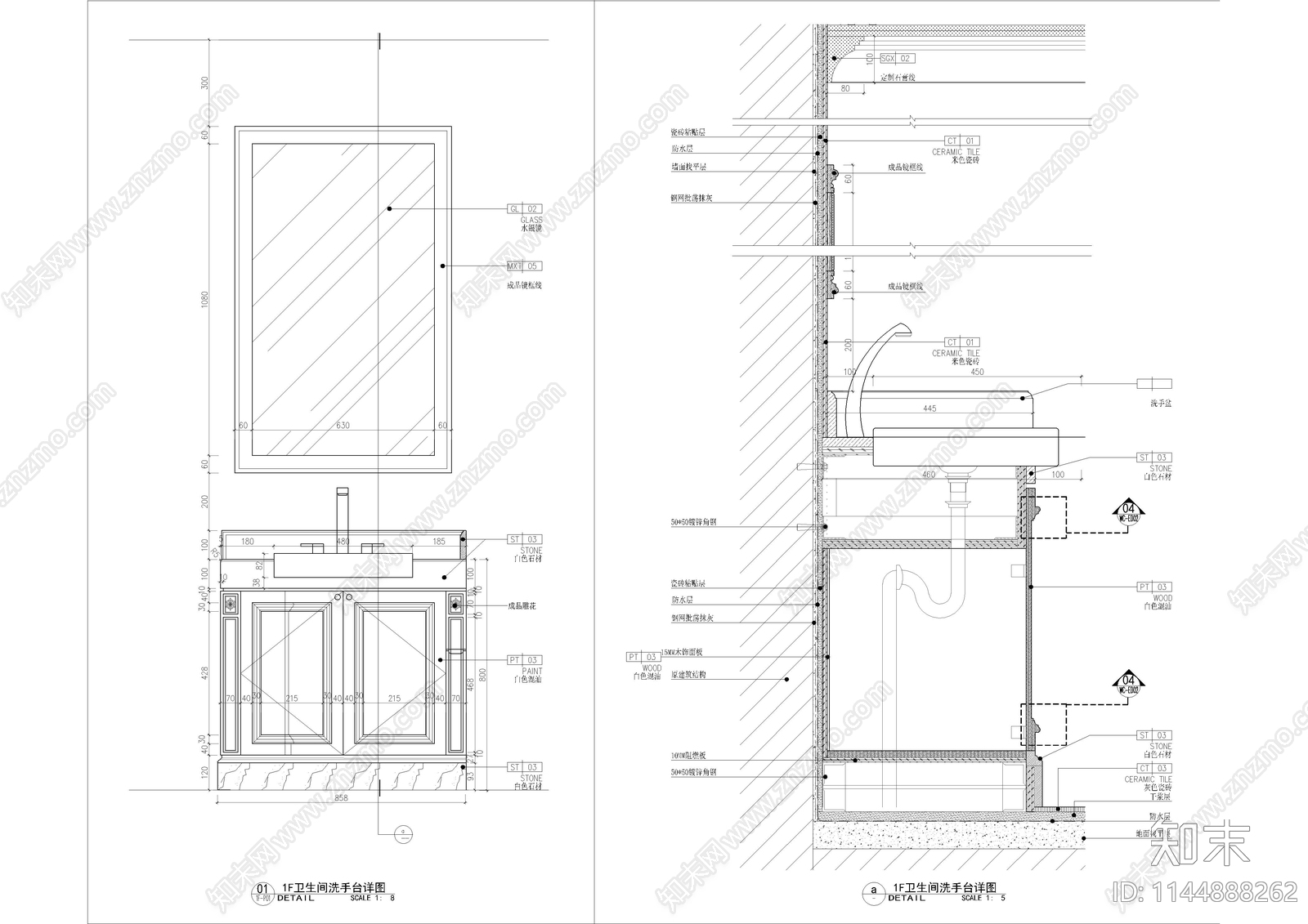
卫生间台盆节点 施工图 家具节点
1/
5
Previous
Next
卫生间台盆节点CAD下载
ID: 1144888262
复制
上传作者
xin图
上传时间
2023-09-27
文件大小
3.31M
设计风格:
现代简约
CAD版本:
CAD2004
包含文件:
CAD
授权
独家
立即下载
收藏
分享
举报
相关推荐
综合
家具节点详图
综合家具节点
吧台节点
壁炉节点
柜体节点
卡座节点
前台节点