1/4


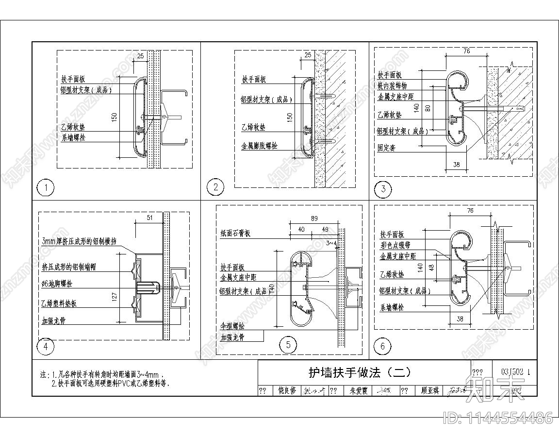
扶手护角大样节点CAD下载
ID: 1144554486
复制
上传作者
往事随风
往事随风上传时间2023-09-22
文件大小0.44M
设计风格:现代简约
CAD版本:CAD2010
包含文件:CAD
授权独家
立即下载
收藏
分享
举报
相关推荐
综合
节点详图
楼梯节点
吊顶节点
墙面节点
地面节点
门节点
其他节点详图
建筑工程节点
景观小品
水景


往事随风上传时间2023-09-22
文件大小0.44M
设计风格:现代简约
CAD版本:CAD2010
包含文件:CAD
授权独家