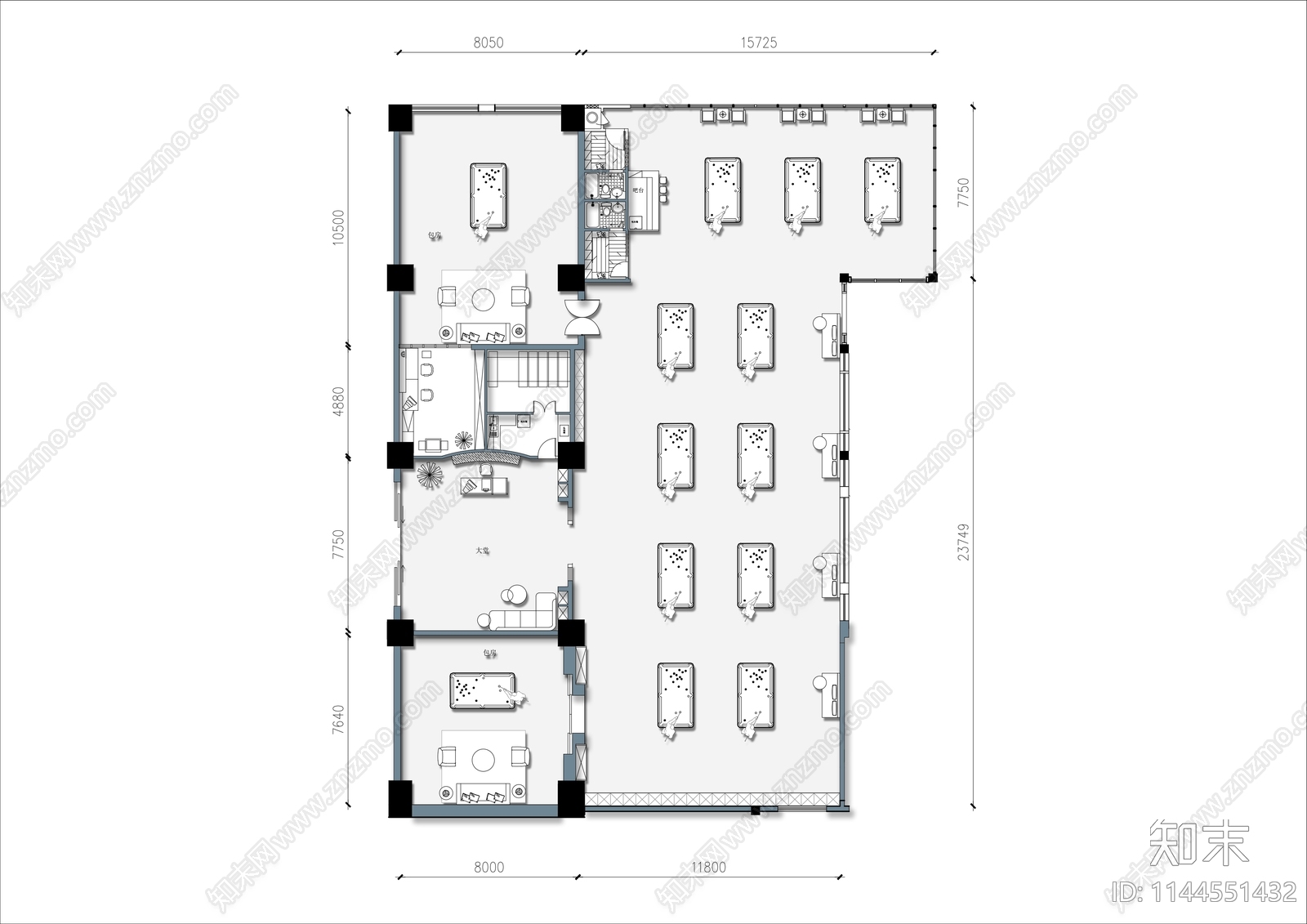
700㎡台球室平面布置图施工图下载【ID:1144551432】

700㎡台球室平面布置图CAD下载

ID: 1144551432
复制
上传作者
灵感碎片灵感碎片

上传时间2023-09-22

文件大小0.91M

设计风格:现代简约

CAD版本:CAD2004

包含文件:CAD

授权独家

立即下载
收藏
分享
举报
相关推荐
综合
休闲娱乐空间
台球厅
会所
美容院
理发店
电影院
茶馆
健身房
KTV
酒吧