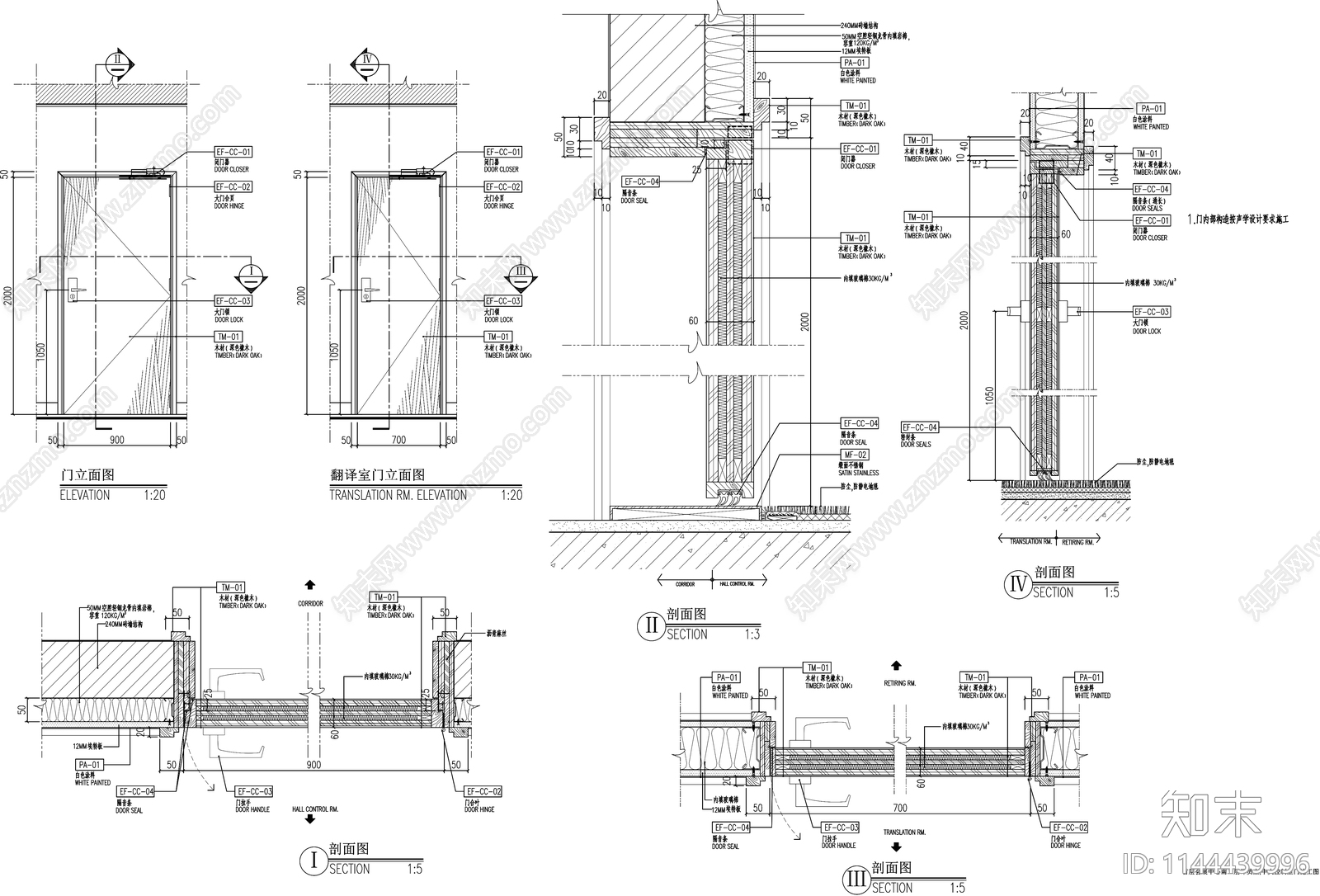
控制室门节点施工图下载【ID:1144439996】

控制室门节点CAD下载

ID: 1144439996
复制
上传作者
粉色海洋粉色海洋

上传时间2023-09-21

文件大小0.23M

设计风格:现代简约

CAD版本:CAD2007

包含文件:CAD

授权普通

立即下载
收藏
分享
举报
相关推荐
综合
门节点
综合门节点
入户门
铁艺大门
月洞门
玻璃门节点
推拉门节点
隐形门节点