CAD频道
CAD图库
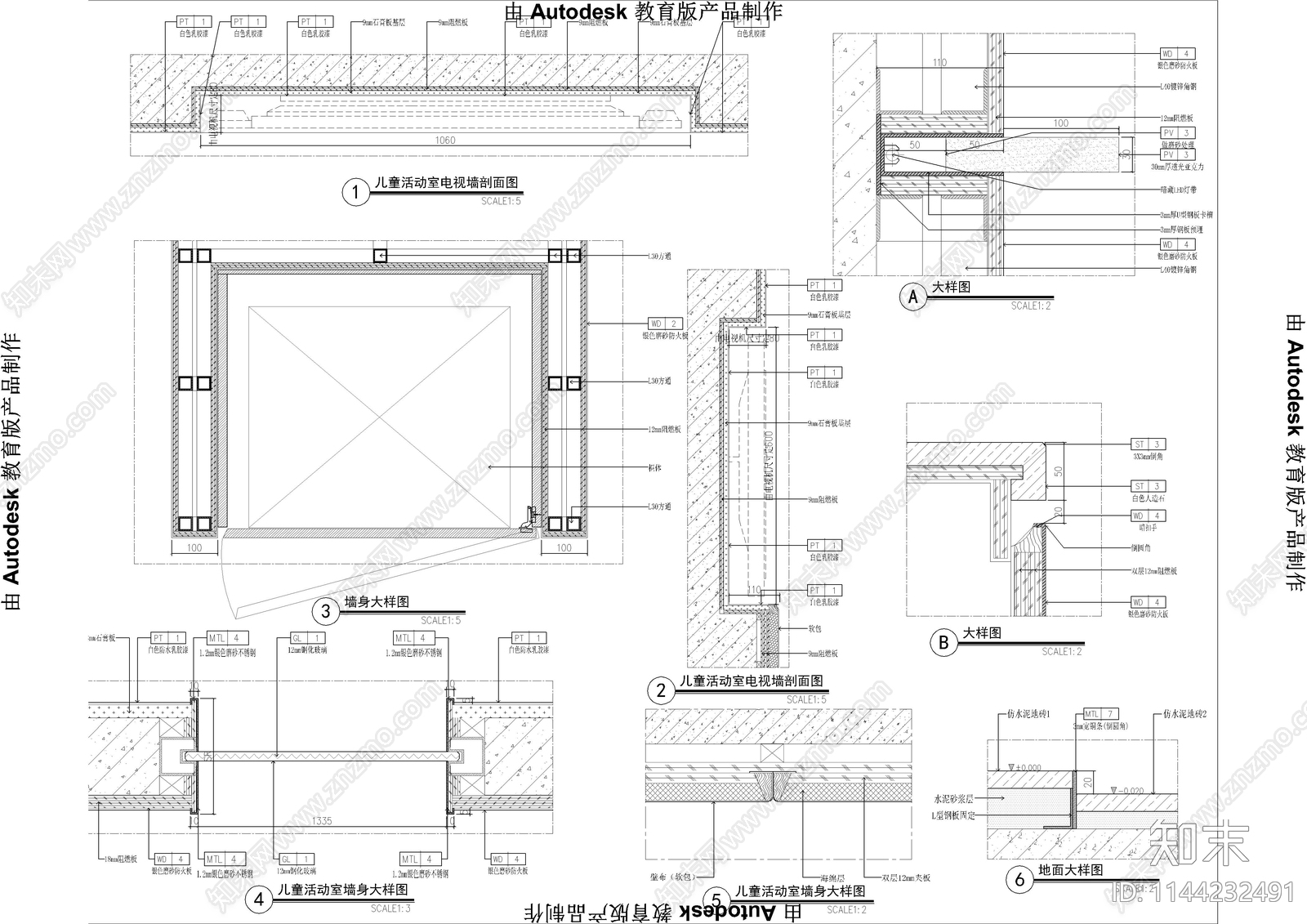
电视背景墙身节点 施工图 墙面节点
1/
5
Previous
Next
电视背景墙身节点CAD下载
ID: 1144232491
复制
上传作者
小趴菜园
上传时间
2023-09-18
文件大小
4.49M
设计风格:
现代简约
CAD版本:
CAD2004
包含文件:
CAD
授权
独家
立即下载
收藏
分享
举报
相关推荐
综合
墙面节点
背景墙节点
轻钢龙骨隔墙
壁龛节点
隔音墙节点