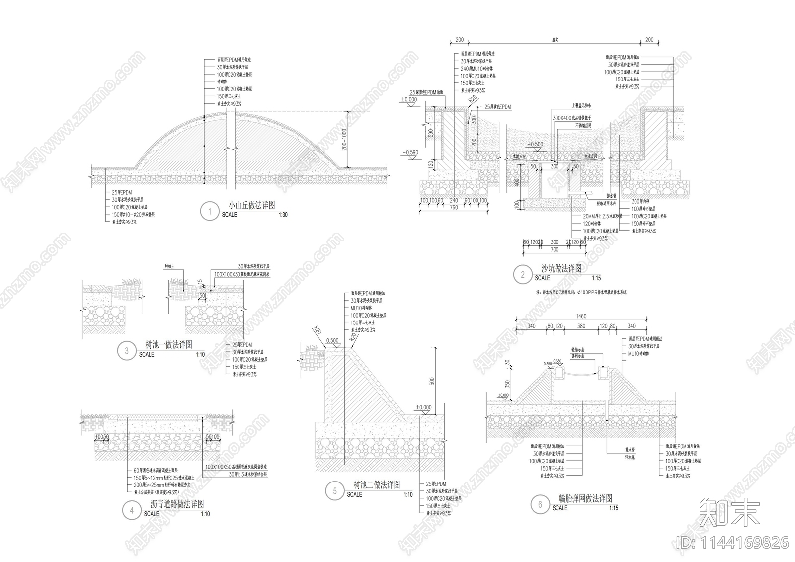
儿童活动区輪胎弹网沙坑小山丘树坑做法详图施工图下载【ID:1144169826】

儿童活动区輪胎弹网沙坑小山丘树坑做法详图CAD下载

ID: 1144169826
复制
上传作者
KH68KH68

上传时间2023-09-17

文件大小0.44M

设计风格:现代简约

CAD版本:CAD2004

包含文件:CAD

授权独家

立即下载
收藏
分享
举报
相关推荐
综合
景观小品
沙坑
亭子
廊架
景墙
综合景观小品
雨棚
围墙
挡土墙
入口