CAD频道
CAD图库
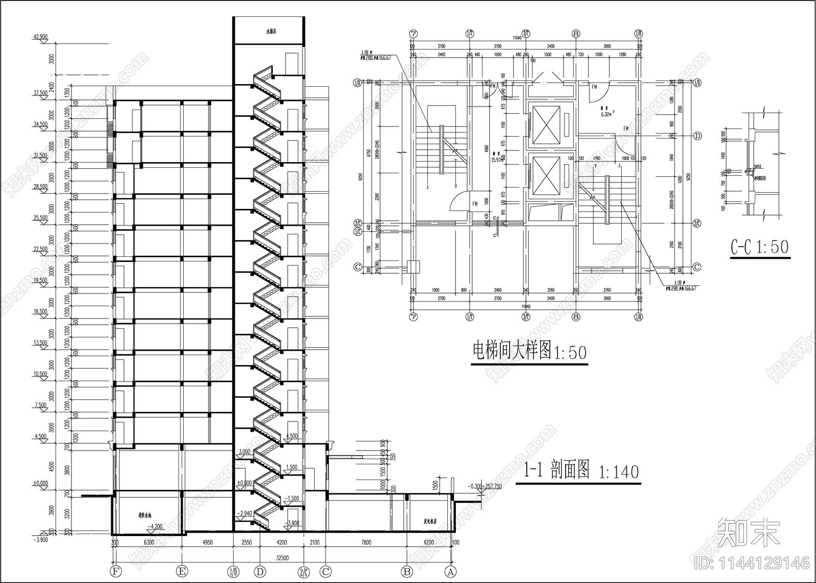
学生宿舍建筑 施工图
1/
6
Previous
Next
学生宿舍建筑CAD下载
ID: 1144129146
复制
上传作者
TXDC
上传时间
2023-09-17
文件大小
0.87M
设计风格:
现代简约
CAD版本:
--
包含文件:
CAD
授权
独家
立即下载
收藏
分享
举报
相关推荐
综合
居住建筑
住宅楼建筑
四合院
别墅建筑
其他居住建筑
高层住宅
多层住宅
低层住宅
公寓建筑
联排住宅