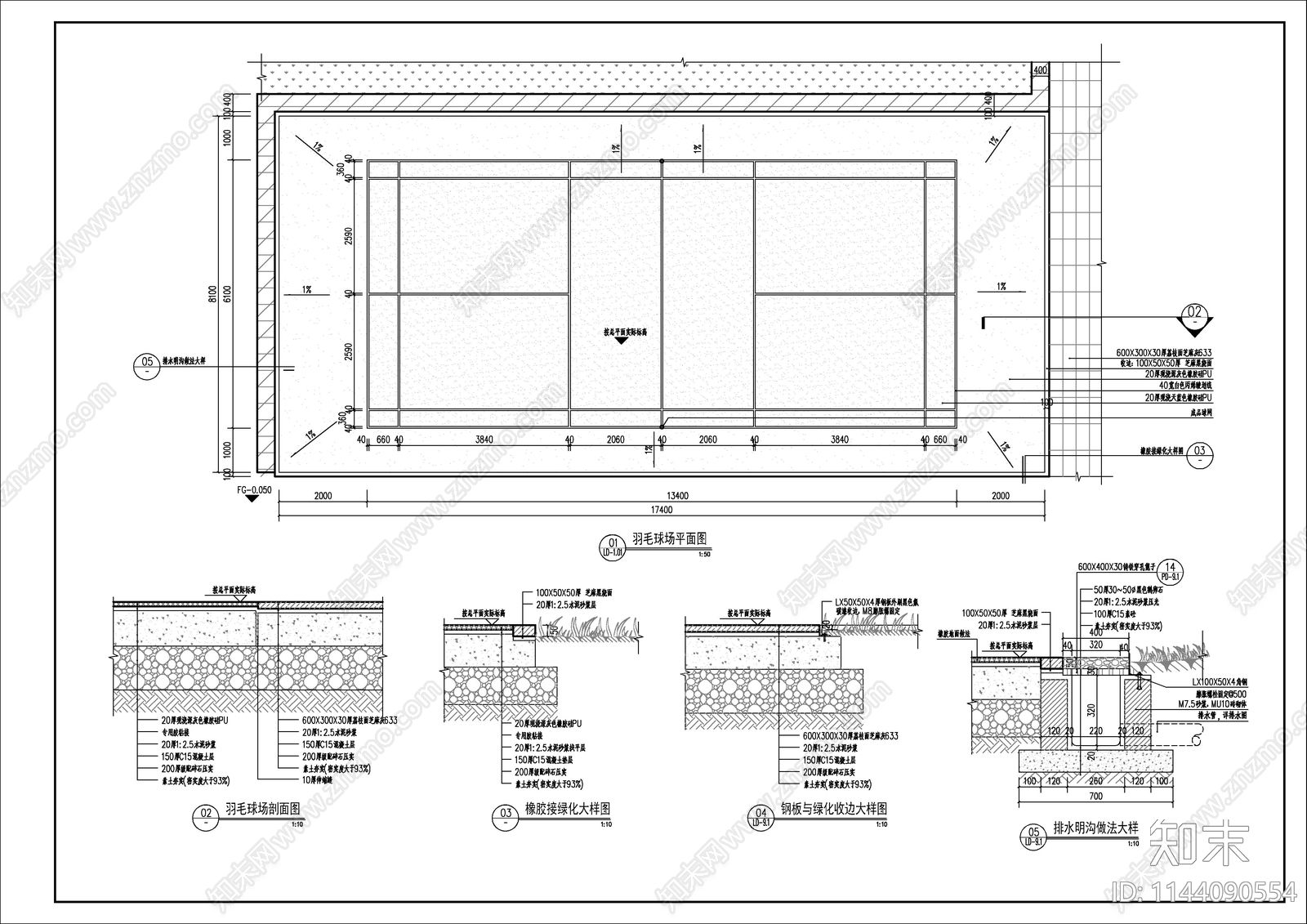
标准羽毛球场详图施工图下载【ID:1144090554】

标准羽毛球场详图CAD下载

ID: 1144090554
复制
上传作者
承诺不熬椰承诺不熬椰

上传时间2023-09-16

文件大小0.22M

设计风格:现代简约

CAD版本:CAD2010

包含文件:CAD

授权独家

立即下载
收藏
分享
举报
相关推荐
综合
运动场
羽毛球场
网球场
篮球场
其他运动场地
操场
足球场
看台
高尔夫