CAD频道
CAD图库
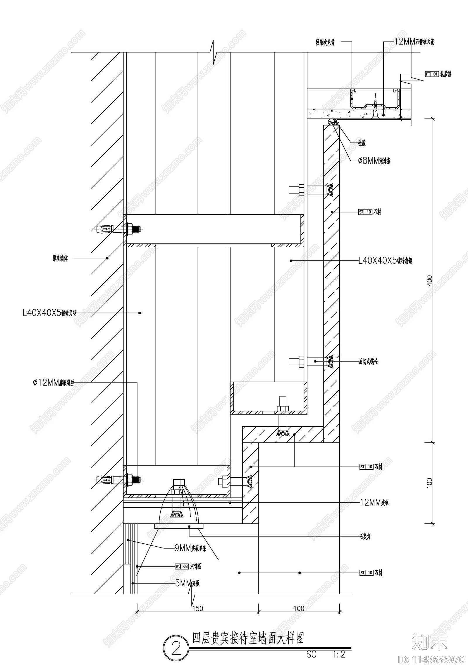
石材木饰面墙大样 施工图 墙面通用节点
1/
7
Previous
Next
石材木饰面墙大样CAD下载
ID: 1143656970
复制
上传作者
小小尘壑
上传时间
2023-09-11
文件大小
1.21M
设计风格:
现代简约
CAD版本:
CAD2004
包含文件:
CAD
授权
独家
立即下载
收藏
分享
举报
相关推荐
综合
墙面节点
背景墙节点
轻钢龙骨隔墙
壁龛节点
隔音墙节点