1/6


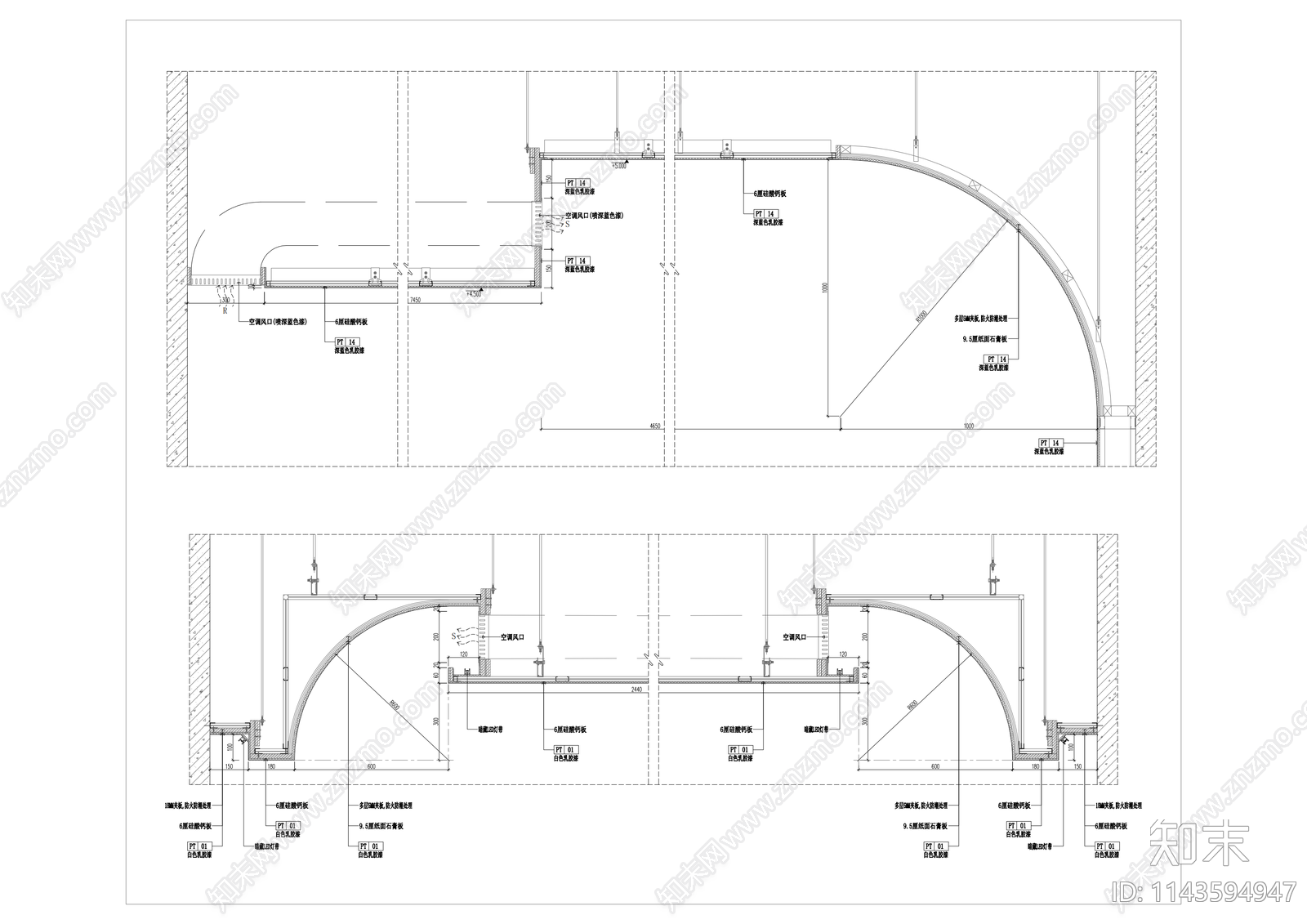
工装造型天花吊顶CAD下载
ID: 1143594947
复制
上传作者
CCCL
CCCL上传时间2023-09-10
文件大小0.64M
设计风格:现代简约
CAD版本:CAD2000
包含文件:CAD
授权独家
立即下载
收藏
分享
举报
相关推荐
综合
吊顶节点
扣板吊顶
方通吊顶
格栅吊顶
软膜天花
铝单板吊顶
GRG吊顶节点
石膏板吊顶
矿棉板吊顶


CCCL上传时间2023-09-10
文件大小0.64M
设计风格:现代简约
CAD版本:CAD2000
包含文件:CAD
授权独家