CAD频道
CAD图库
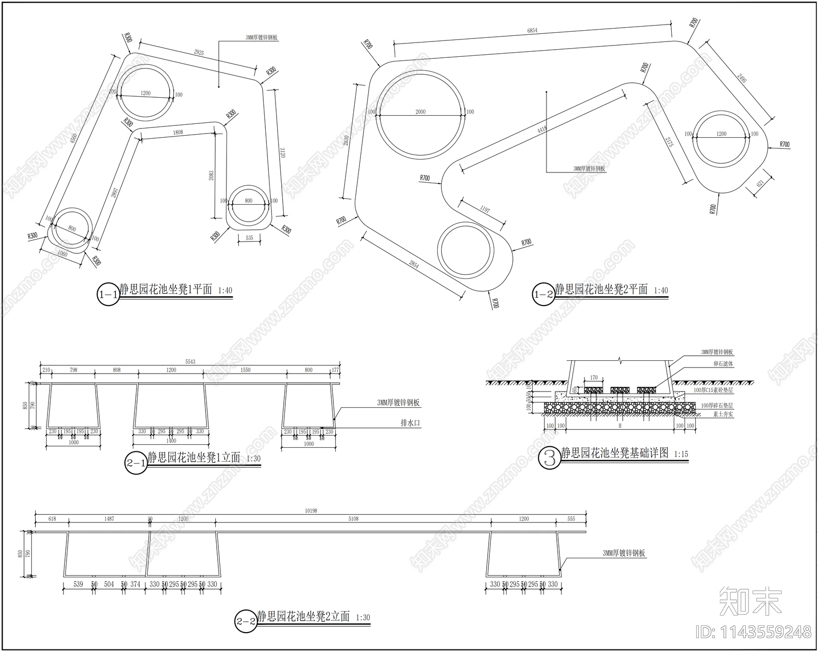
树桌花园桌子详图 施工图 景观小品
1/
3
Previous
Next
树桌花园桌子详图CAD下载
ID: 1143559248
复制
上传作者
704564
上传时间
2023-09-09
文件大小
4.64M
设计风格:
现代简约
CAD版本:
CAD2006
包含文件:
CAD
授权
普通
立即下载
收藏
分享
举报
相关推荐
综合
景观小品
综合景观小品
亭子
廊架
景墙
雨棚
围墙
挡土墙
入口
景观坐凳