CAD频道
CAD图库
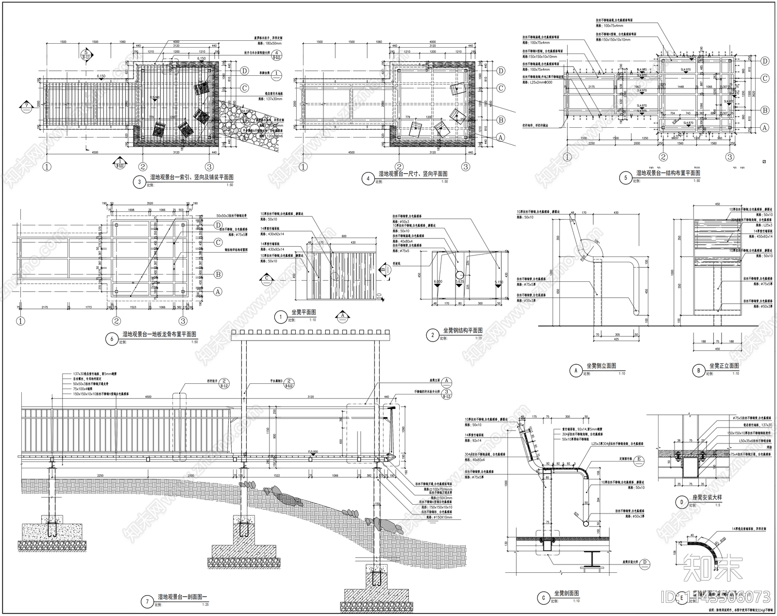
湿地公园栈道平台 施工图
1/
3
Previous
Next
湿地公园栈道平台CAD下载
ID: 1143506073
复制
上传作者
704564
上传时间
2023-09-08
文件大小
8.68M
设计风格:
现代简约
CAD版本:
CAD2006
包含文件:
CAD
授权
普通
立即下载
收藏
分享
举报
相关推荐
综合
景观小品
栈道
亭子
廊架
景墙
综合景观小品
雨棚
围墙
挡土墙
入口