CAD频道
CAD图库
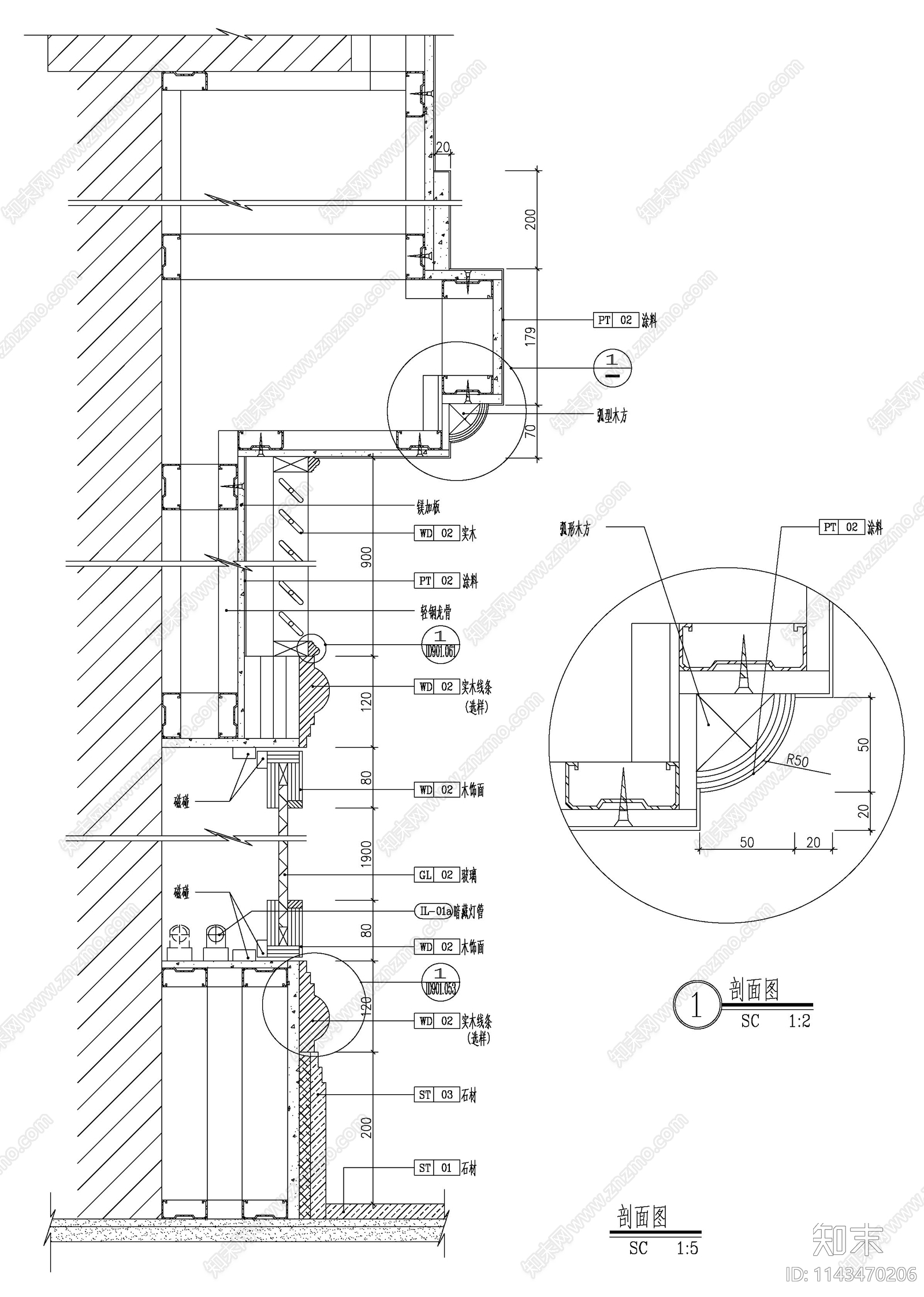
涂料墙纸墙面大样 施工图 墙面通用节点
1/
9
Previous
Next
涂料墙纸墙面大样CAD下载
ID: 1143470206
复制
上传作者
小小尘壑
上传时间
2023-09-08
文件大小
0.33M
设计风格:
现代简约
CAD版本:
CAD2004
包含文件:
CAD
授权
独家
立即下载
收藏
分享
举报
相关推荐
综合
墙面节点
背景墙节点
轻钢龙骨隔墙
壁龛节点
隔音墙节点