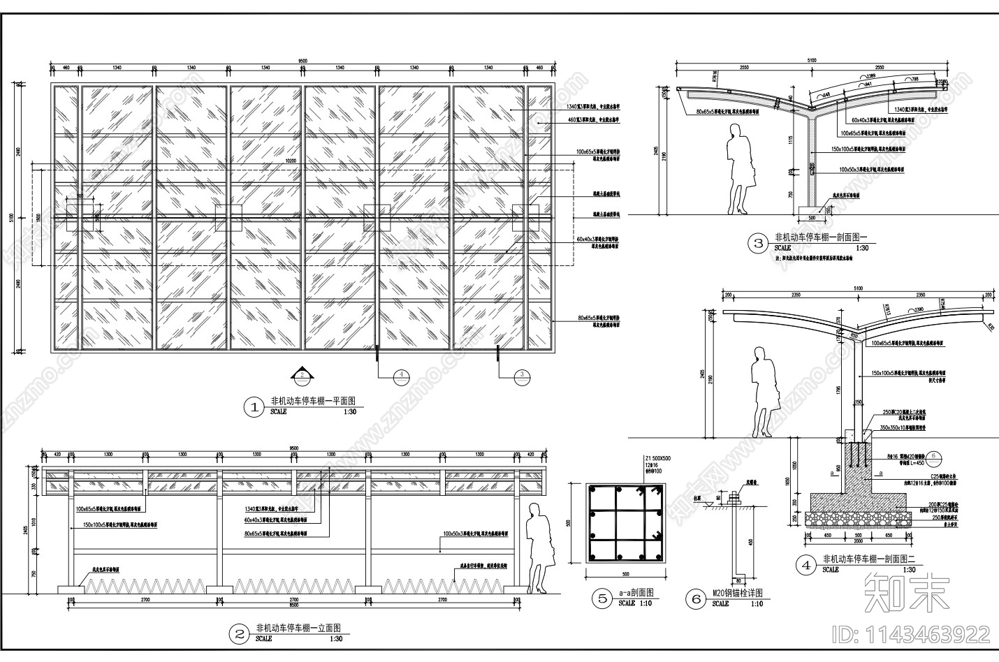
居住区双侧非机动车停车棚施工图下载【ID:1143463922】

居住区双侧非机动车停车棚CAD下载

ID: 1143463922
复制
上传作者
CHYI147CHYI147

上传时间2023-09-08

文件大小0.9M

设计风格:现代简约

CAD版本:CAD2007

包含文件:CAD

授权独家

立即下载
收藏
分享
举报
相关推荐
综合
景观小品
停车位
亭子
廊架
景墙
综合景观小品
雨棚
围墙
挡土墙
入口