CAD频道
CAD图库
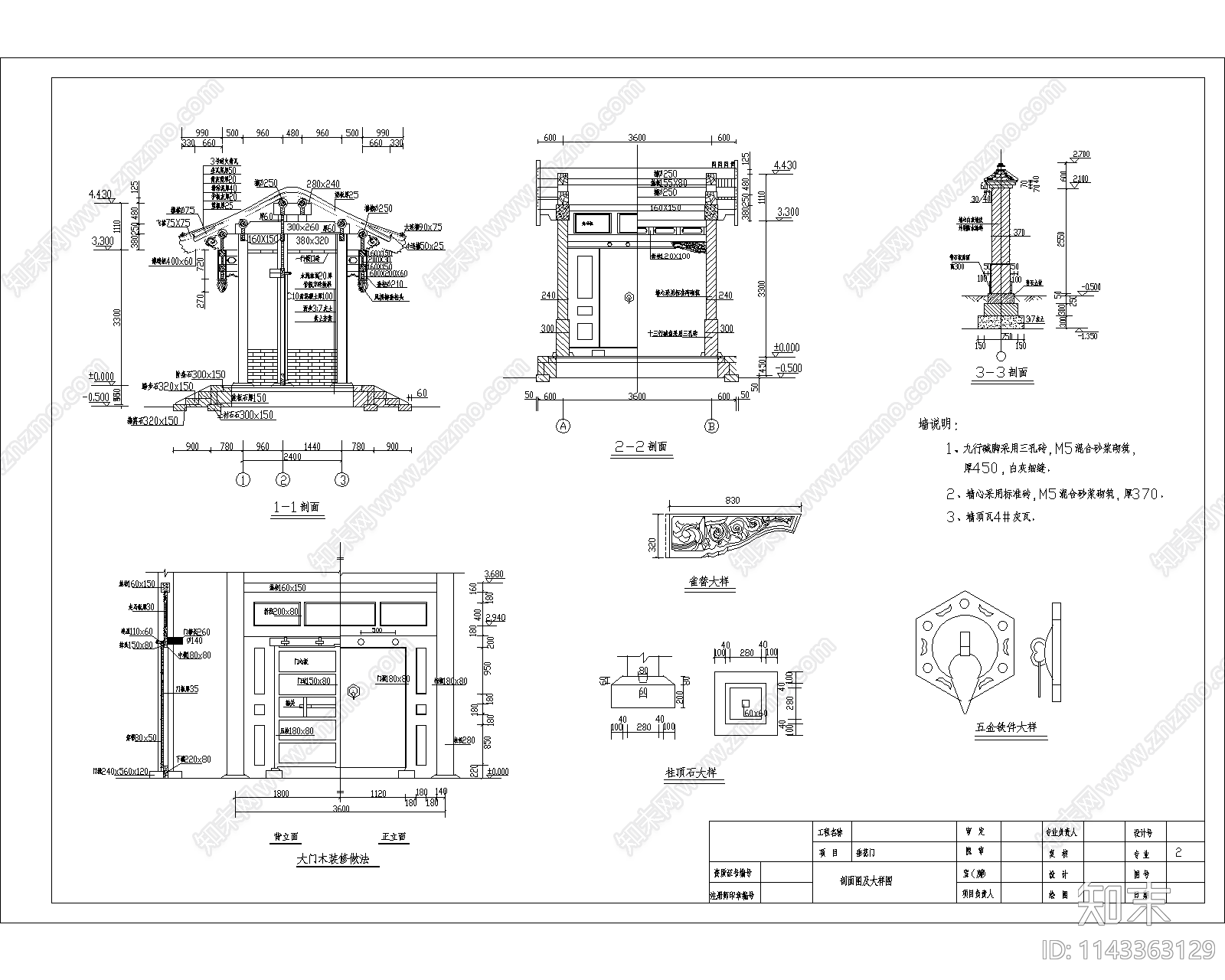
清官式垂花门平立剖详图 施工图
1/
2
Previous
Next
清官式垂花门平立剖详图CAD下载
ID: 1143363129
复制
上传作者
59722724
上传时间
2023-09-07
文件大小
0.25M
设计风格:
现代简约
CAD版本:
CAD2014
包含文件:
CAD
授权
独家
立即下载
收藏
分享
举报
相关推荐
综合
古建
其他古建筑
祠堂
寺庙
徽派建筑
仿古建筑