CAD频道
CAD图库
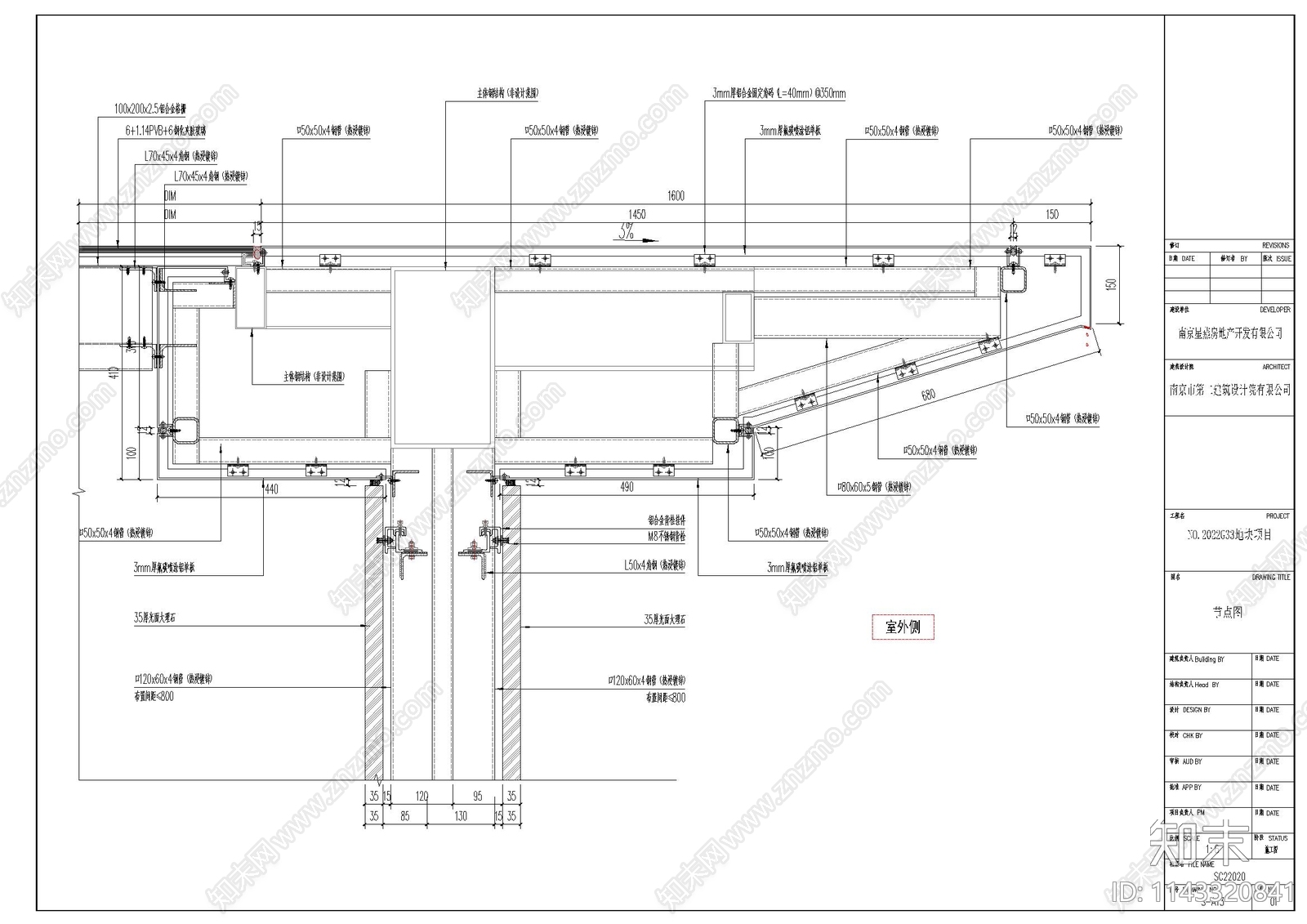
门楼大门幕墙深化图 施工图 节点 结构节点图
1/
10
Previous
Next
门楼大门幕墙深化图CAD下载
ID: 1143320841
复制
上传作者
艺创空间
上传时间
2023-09-06
文件大小
2.11M
设计风格:
现代简约
CAD版本:
CAD2004
包含文件:
CAD
授权
独家
立即下载
收藏
分享
举报
相关推荐
综合
结构节点图
幕墙结构节点
桁架
钢结构节点
混凝土节点
转换层
其他结构设计