CAD频道
CAD图库
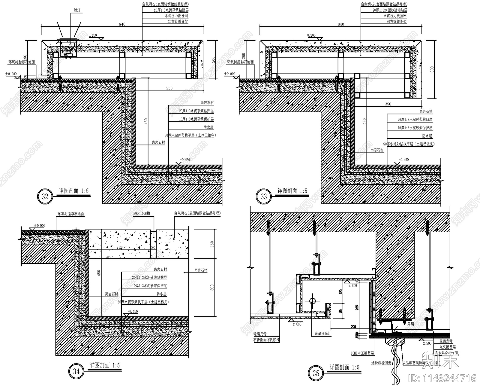
别墅防水节点详图 施工图 通用节点
1/
5
Previous
Next
别墅防水节点详图CAD下载
ID: 1143244716
复制
上传作者
小小尘壑
上传时间
2023-09-05
文件大小
0.29M
设计风格:
现代简约
CAD版本:
CAD2004
包含文件:
CAD
授权
独家
立即下载
收藏
分享
举报
相关推荐
综合
室内工艺节点
其他室内工艺节点