CAD频道
CAD图库
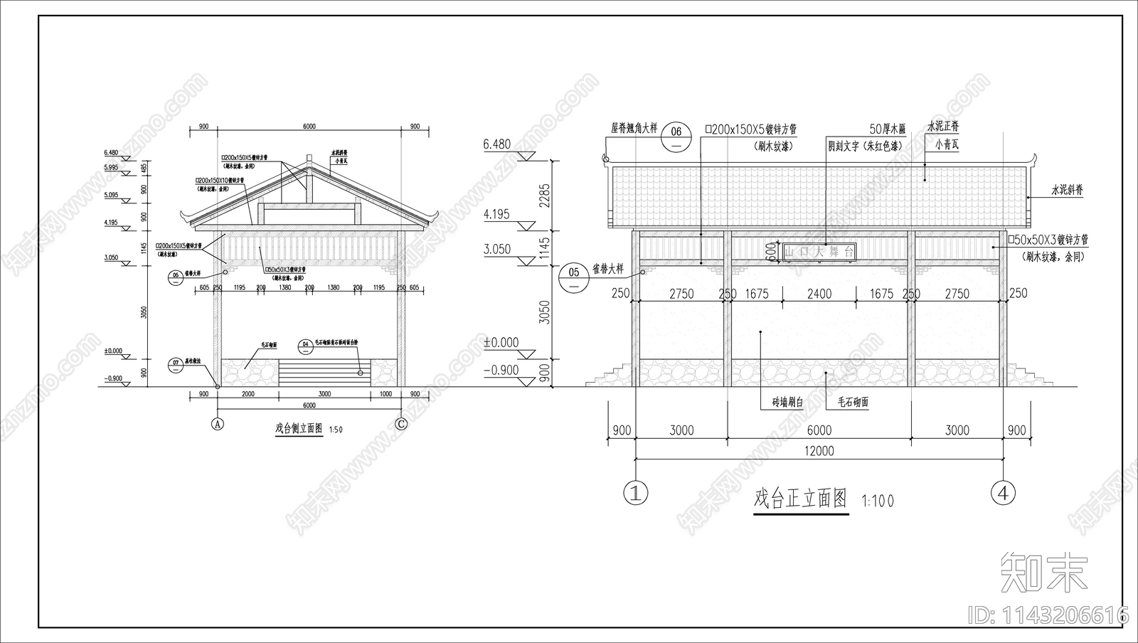
乡村仿古小舞台建筑 施工图 建筑
1/
5
Previous
Next
乡村仿古小舞台建筑CAD下载
ID: 1143206616
复制
上传作者
承诺不熬椰
上传时间
2023-09-05
文件大小
0.18M
设计风格:
现代简约
CAD版本:
CAD2010
包含文件:
CAD
授权
独家
立即下载
收藏
分享
举报
相关推荐
综合
休闲娱乐空间
舞台
会所
美容院
理发店
电影院
茶馆
健身房
KTV
酒吧