CAD频道
CAD图库
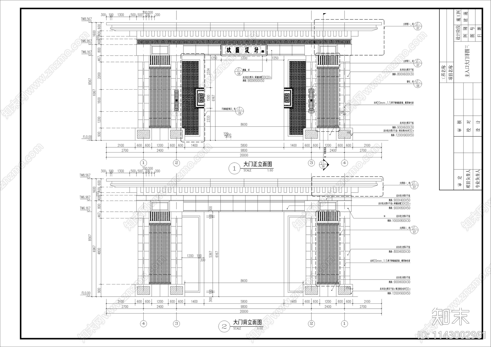
新中式小区主入口大门详图 施工图
1/
9
Previous
Next
新中式小区主入口大门详图CAD下载
ID: 1143002961
复制
上传作者
玖图设
上传时间
2023-09-02
文件大小
1.28M
设计风格:
现代简约
CAD版本:
CAD2007
包含文件:
CAD
授权
独家
立即下载
收藏
分享
举报
相关推荐
综合
景观小品
入口
亭子
廊架
景墙
综合景观小品
雨棚
围墙
挡土墙
景观坐凳