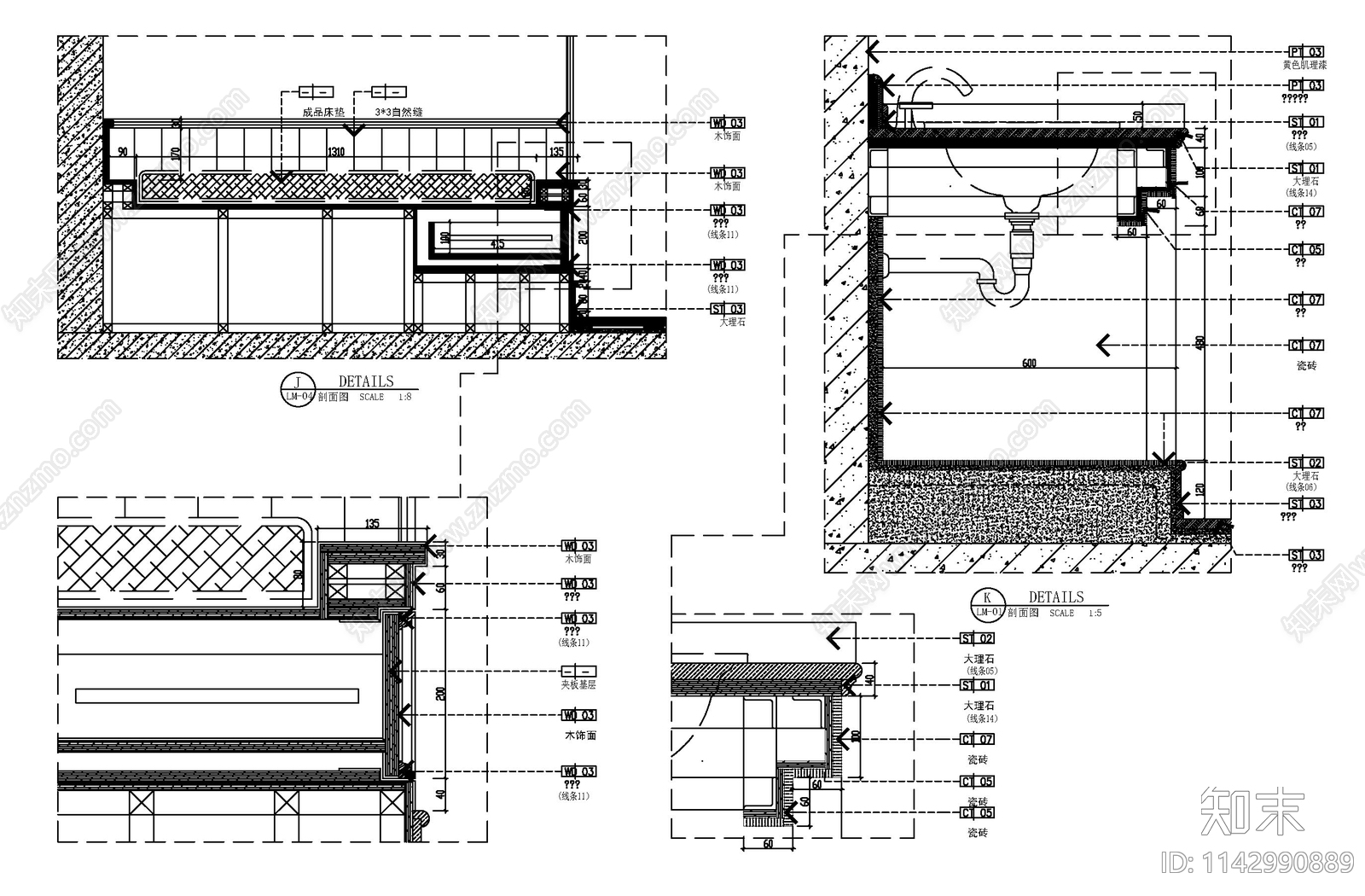
卫生间飘窗洗手盆大样施工图下载【ID:1142990889】

卫生间飘窗洗手盆大样CAD下载

ID: 1142990889
复制
上传作者
小小尘壑小小尘壑

上传时间2023-09-02

文件大小0.51M

设计风格:现代简约

CAD版本:CAD2004

包含文件:CAD

授权独家

立即下载
收藏
分享
举报
相关推荐
综合
家具节点详图
综合家具节点
吧台节点
壁炉节点
柜体节点
卡座节点
前台节点