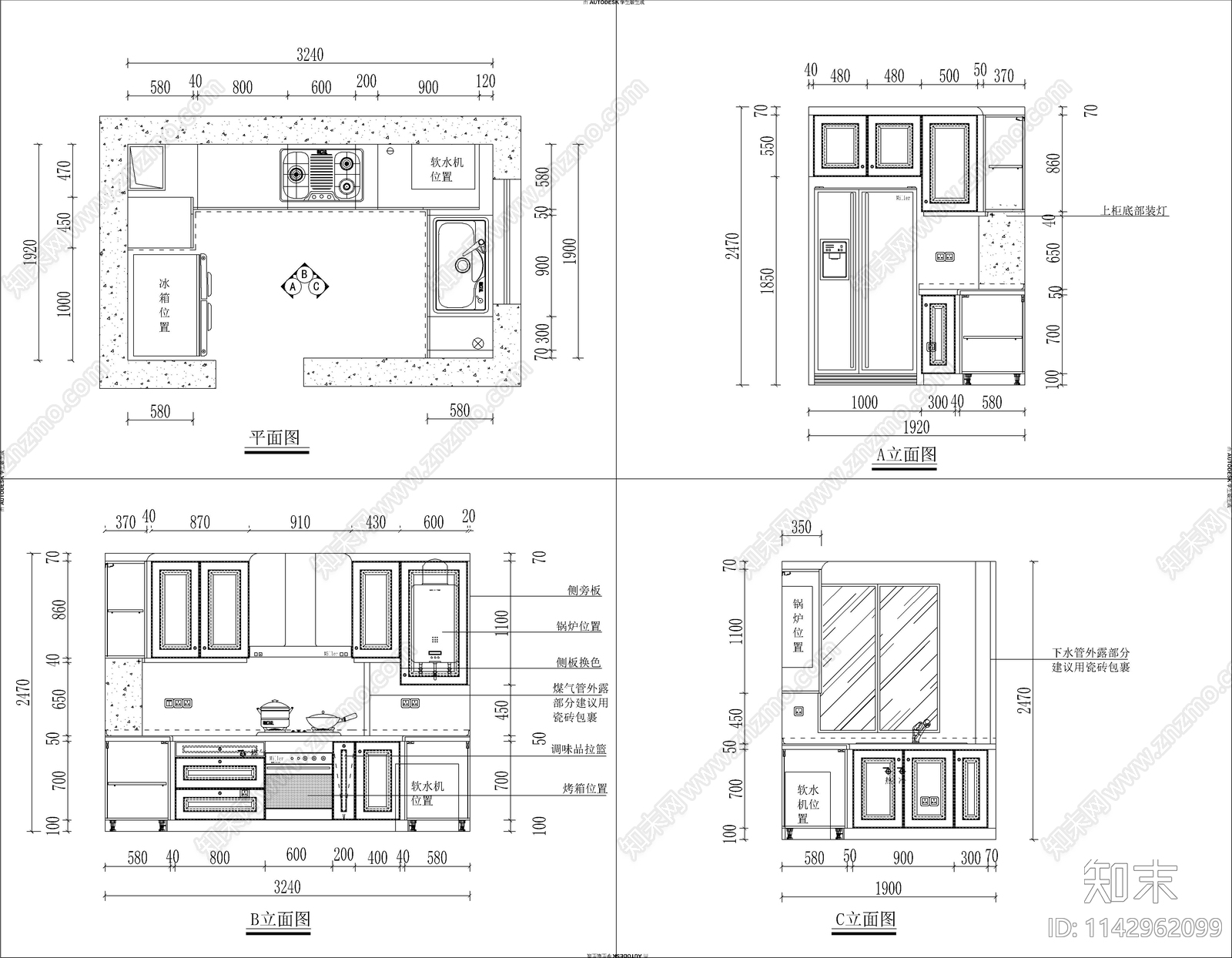
厨房室内装修施工图下载【ID:1142962099】

厨房室内装修CAD下载

ID: 1142962099
复制
上传作者
玖图设玖图设

上传时间2023-09-01

文件大小0.15M

设计风格:现代简约

CAD版本:CAD2007

包含文件:CAD

授权独家

立即下载
收藏
分享
举报
相关推荐
综合
家装局部空间
厨房
客厅
餐厅
卫生间
卧室
书房
衣帽间
客餐厅
儿童房