1/5


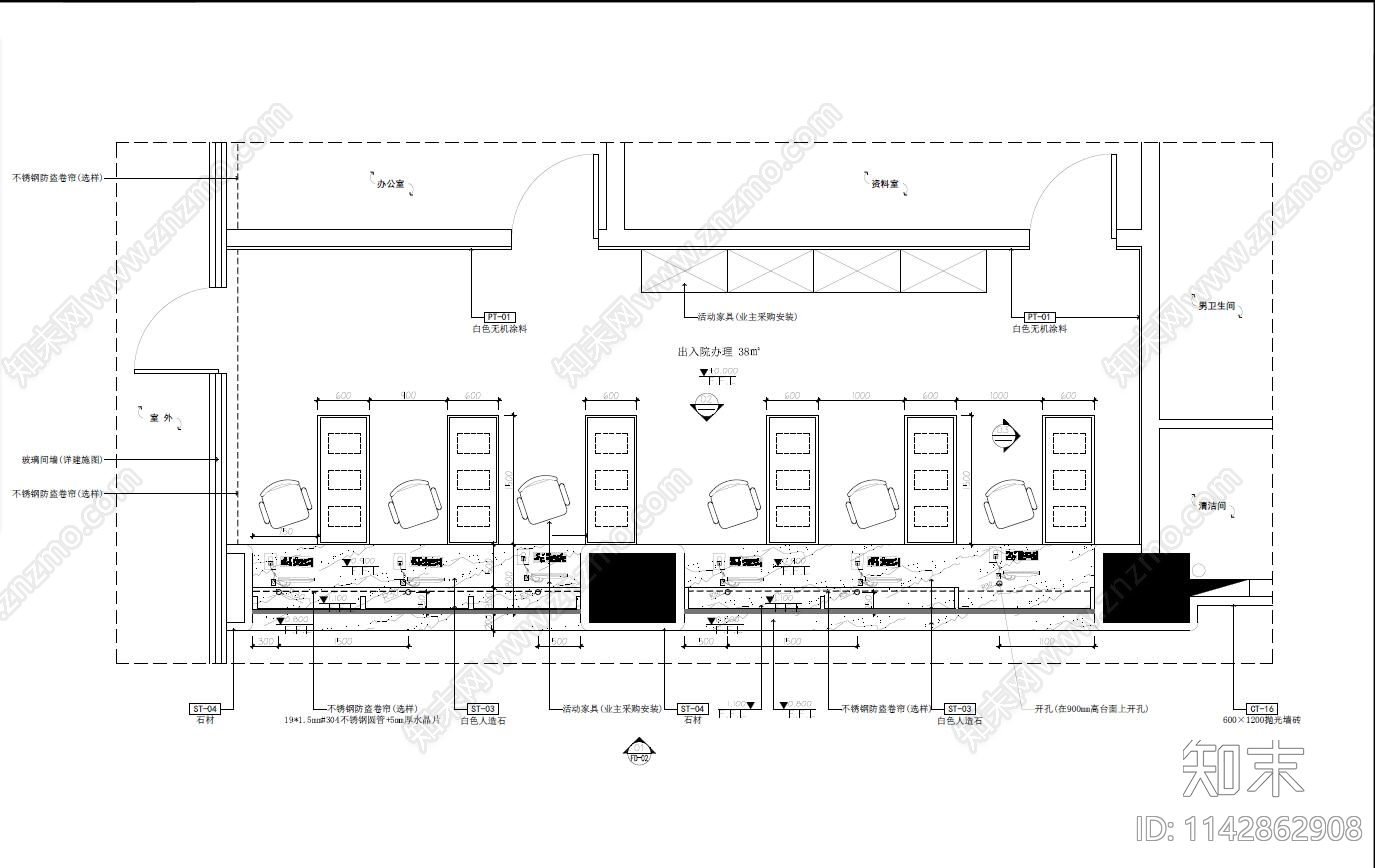
医院出入院收费台大样CAD下载
ID: 1142862908
复制
上传作者
~90後^大叔
~90後^大叔上传时间2023-08-31
文件大小1.3M
设计风格:现代简约
CAD版本:CAD2004
包含文件:CAD
授权独家
立即下载
收藏
分享
举报
相关推荐
综合
家具节点详图
综合家具节点
吧台节点
壁炉节点
柜体节点
卡座节点
前台节点


~90後^大叔上传时间2023-08-31
文件大小1.3M
设计风格:现代简约
CAD版本:CAD2004
包含文件:CAD
授权独家