CAD频道
CAD图库
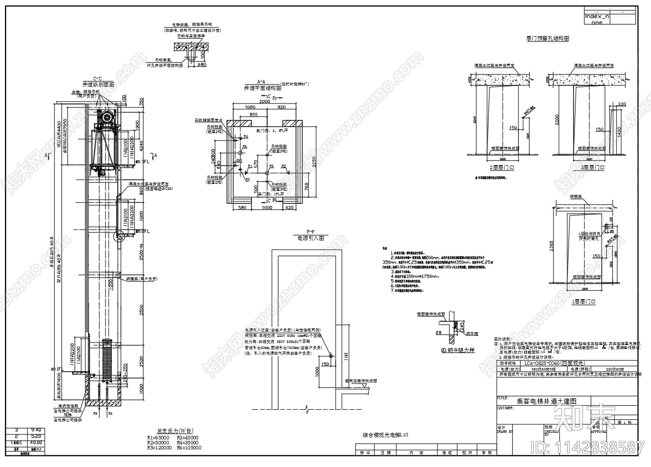
室外钢结构观光电结构 施工图
1/
4
Previous
Next
室外钢结构观光电结构CAD下载
ID: 1142838587
复制
上传作者
小小鱼鱼
上传时间
2023-08-31
文件大小
1.16M
设计风格:
现代简约
CAD版本:
CAD2000
包含文件:
CAD
授权
独家
立即下载
收藏
分享
举报
相关推荐
综合
结构设计
钢结构
混凝土结构
幕墙结构
砌体结构
木结构
结构节点图
其他结构图纸