CAD频道
CAD图库
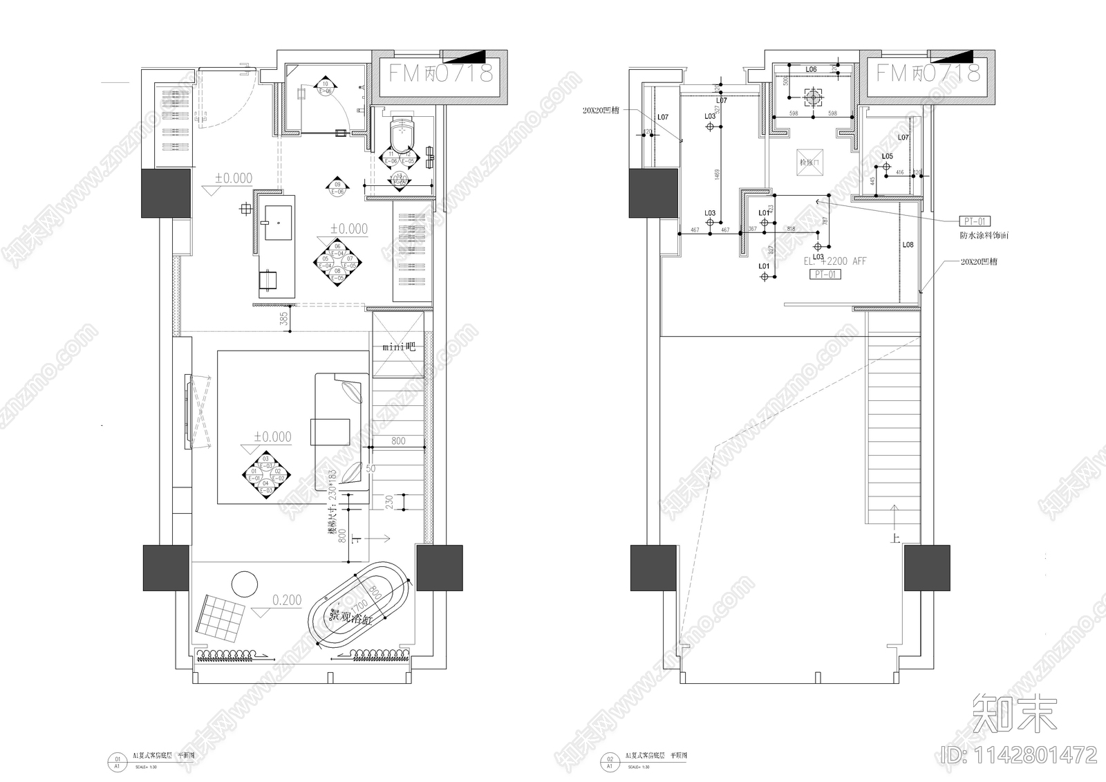
酒店复式客房室内 施工图 客房
1/
5
Previous
Next
酒店复式客房室内CAD下载
ID: 1142801472
复制
上传作者
小趴菜园
上传时间
2023-08-30
文件大小
3.68M
设计风格:
现代简约
CAD版本:
CAD2004
包含文件:
CAD
授权
独家
立即下载
收藏
分享
举报
相关推荐
综合
酒店
酒店客房
酒店餐厅
酒店大堂
酒店公区
酒店卫生间
酒店套房
酒店宴会厅
其他酒店