CAD频道
CAD图库
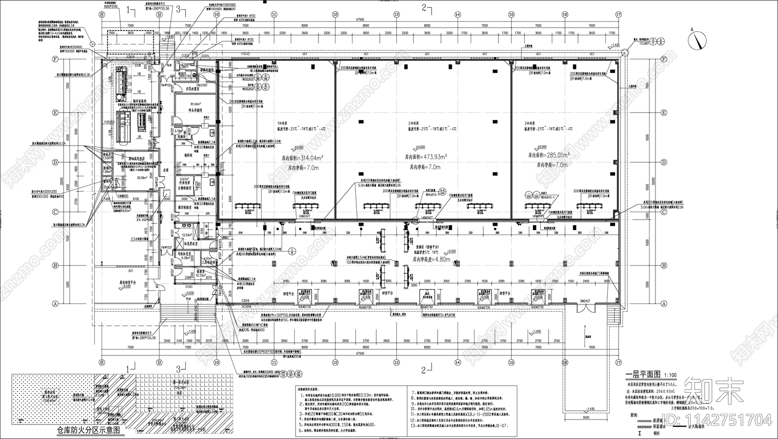
冷库建筑 施工图 工业建筑
1/
6
Previous
Next
冷库建筑CAD下载
ID: 1142751704
复制
上传作者
TXDC
上传时间
2023-08-29
文件大小
2.12M
设计风格:
现代简约
CAD版本:
CAD2010
包含文件:
CAD
授权
独家
立即下载
收藏
分享
举报
相关推荐
综合
公共空间
仓库
其他公共空间
公共卫生间
宿舍
门头
服务中心
活动中心
会展
母婴室